Agenda
Ordinary (Planning) Meeting

Thursday, 10 April 2025
Agenda Ordinary (Planning) Meeting
held at Council Chambers, Station Street, Mullumbimby
commencing at 3:00 PM
Public access relating to items on this agenda can be made between 3:00pm and 4:00pm on the day of the meeting. Requests for public access should be made to the General Manager or Mayor no later than 12:00 midday on the day prior to the meeting.

Mark Arnold
General Manager
CONFLICT OF INTERESTS
What is a “Conflict of Interests” - A conflict of interests can be of two types:
Pecuniary - an interest that a person has in a matter because of a reasonable likelihood or expectation of appreciable financial gain or loss to the person or another person with whom the person is associated.
Non-pecuniary – a private or personal interest that a Council official has that does not amount to a pecuniary interest as defined in the Code of Conduct for Councillors (eg. A friendship, membership of an association, society or trade union or involvement or interest in an activity and may include an interest of a financial nature).
Remoteness – a person does not have a pecuniary interest in a matter if the interest is so remote or insignificant that it could not reasonably be regarded as likely to influence any decision the person might make in relation to a matter or if the interest is of a kind specified in the Code of Conduct for Councillors.
Who has a Pecuniary Interest? - a person has a pecuniary interest in a matter if the pecuniary interest is the interest of the person, or another person with whom the person is associated (see below).
Relatives, Partners - a person is taken to have a pecuniary interest in a matter if:
· The person’s spouse or de facto partner or a relative of the person has a pecuniary interest in the matter, or
· The person, or a nominee, partners or employer of the person, is a member of a company or other body that has a pecuniary interest in the matter.
N.B. “Relative”, in relation to a person means any of the following:
(a) the parent, grandparent, brother, sister, uncle, aunt, nephew, niece, lineal descends or adopted child of the person or of the person’s spouse;
(b) the spouse or de facto partners of the person or of a person referred to in paragraph (a)
No Interest in the Matter - however, a person is not taken to have a pecuniary interest in a matter:
· If the person is unaware of the relevant pecuniary interest of the spouse, de facto partner, relative or company or other body, or
· Just because the person is a member of, or is employed by, the Council.
· Just because the person is a member of, or a delegate of the Council to, a company or other body that has a pecuniary interest in the matter provided that the person has no beneficial interest in any shares of the company or body.
Disclosure and participation in meetings
· A Councillor or a member of a Council Committee who has a pecuniary interest in any matter with which the Council is concerned and who is present at a meeting of the Council or Committee at which the matter is being considered must disclose the nature of the interest to the meeting as soon as practicable.
· The Councillor or member must not be present at, or in sight of, the meeting of the Council or Committee:
(a) at any time during which the matter is being considered or discussed by the Council or Committee, or
(b) at any time during which the Council or Committee is voting on any question in relation to the matter.
No Knowledge - a person does not breach this Clause if the person did not know and could not reasonably be expected to have known that the matter under consideration at the meeting was a matter in which he or she had a pecuniary interest.
Non-pecuniary Interests - Must be disclosed in meetings.
There are a broad range of options available for managing conflicts & the option chosen will depend on an assessment of the circumstances of the matter, the nature of the interest and the significance of the issue being dealt with. Non-pecuniary conflicts of interests must be dealt with in at least one of the following ways:
· It may be appropriate that no action be taken where the potential for conflict is minimal. However, Councillors should consider providing an explanation of why they consider a conflict does not exist.
· Limit involvement if practical (eg. Participate in discussion but not in decision making or vice-versa). Care needs to be taken when exercising this option.
· Remove the source of the conflict (eg. Relinquishing or divesting the personal interest that creates the conflict)
· Have no involvement by absenting yourself from and not taking part in any debate or voting on the issue as of the provisions in the Code of Conduct (particularly if you have a significant non-pecuniary interest)
RECORDING OF VOTING ON PLANNING MATTERS
Clause 375A of the Local Government Act 1993 – Recording of voting on planning matters
(1) In this section, planning decision means a decision made in the exercise of a function of a council under the Environmental Planning and Assessment Act 1979:
(a) including a decision relating to a development application, an environmental planning instrument, a development control plan or a development contribution plan under that Act, but
(b) not including the making of an order under that Act.
(2) The general manager is required to keep a register containing, for each planning decision made at a meeting of the council or a council committee, the names of the councillors who supported the decision and the names of any councillors who opposed (or are taken to have opposed) the decision.
(3) For the purpose of maintaining the register, a division is required to be called whenever a motion for a planning decision is put at a meeting of the council or a council committee.
(4) Each decision recorded in the register is to be described in the register or identified in a manner that enables the description to be obtained from another publicly available document, and is to include the information required by the regulations.
(5) This section extends to a meeting that is closed to the public.
OATH AND AFFIRMATION FOR COUNCILLORS
Councillors are reminded of the oath of office or affirmation of office made at or before their first meeting of the council in accordance with Clause 233A of the Local Government Act 1993. This includes undertaking the duties of the office of councillor in the best interests of the people of Byron Shire and the Byron Shire Council and faithfully and impartially carrying out the functions, powers, authorities and discretions vested under the Act or any other Act to the best of one’s ability and judgment.
BUSINESS OF Ordinary (Planning) Meeting
1. Public Access
3. Attendance by Audio-Visual Link
4. Requests for Leave of Absence
5. Declarations of Interest – Pecuniary and Non-Pecuniary
6. Tabling of Pecuniary Interest Returns (Cl 4.14 Code of Conduct for Councillors)
7. Adoption of Minutes from Previous Meetings
7.1 Ordinary (Planning) Meeting held on 13 March 2025
8. Reservation of Items for Debate and Order of Business
9. Notices of Motion
Nil
10. Mayoral Minute
11. Petitions
12. Delegates' Reports
13. Staff Reports
Sustainable Environment and Economy
13.1 PLANNING - DA 10.2024.290.1 - Change of Use from Motel to Serviced Apartments Including Ancillary Restaurant/Bar and Alterations and Additions, 3 Shirley Street, BYRON BAY................................................................................................................... 8
13.2 PLANNING - DA 10.2024.474.1- Removal of existing dwelling and construction of two 2 storey dwelling houses with swimming pools 7 Leslie Street Bangalow......... 41
13.3 Business, Industry and Visitor Economy (BIVE) Strategy - Post Exhibition Report........................................................................................................................................ 62
13.4 Events Strategy - Post Exhibition Report................................................................. 71
13.5 PLANNING - Report of the Planning Review Committee held 11 March 2025. 78
13.6 Status report on Development Applications (DAs) with bodies like the Northern Regional Planning Panel (NRPP).............................................................................. 80
13.7 PLANNING - DA 10.2024.490.1 - Dual Occupancy (Detached) Comprising an Existing Dwelling, a New Dwelling, a Carport / Workshop and Removal of 6 Trees - 7 Tinderbox Road, Talofa.............................................................................................. 86
Infrastructure Services
13.8 General Managers Delegation to Award Tenders................................................ 101
14. Reports of Committees
Infrastructure Services
14.1 Report of the Local Traffic Committee Meeting held on 18 March 2025.......... 105
15. Questions With Notice
Nil
Questions with Notice: A response to Questions with Notice will be provided at the meeting if possible, that response will be included in the meeting minutes. If a response is unable to be provided the question will be taken on notice, with an answer to be provided to the person/organisation prior to the next Ordinary Meeting and placed on Councils website www.byron.nsw.gov.au/Council/Council-meetings/Questions-on-Notice
Councillors are encouraged to ask questions regarding any item on the business paper to the appropriate Director prior to the meeting. Any suggested amendments to the recommendations should be provided to Councillor Support prior to the meeting to allow the changes to be typed and presented on the screen at the meeting.
Staff Reports - Sustainable Environment and Economy 13.1
Staff Reports - Sustainable Environment and Economy
Report No. 13.1 PLANNING - DA 10.2024.290.1 - Change of Use from Motel to Serviced Apartments Including Ancillary Restaurant/Bar and Alterations and Additions, 3 Shirley Street, BYRON BAY
Directorate: Sustainable Environment and Economy
Report Author: Ben Grant, Senior Planner
File No: I2024/1718
Proposal:
|
DA No: |
10.2024.290.1 |
||
|
Planning Portal ref |
PAN-462246 |
||
|
Proposal description: |
Change of Use from Motel to Serviced Apartments including Ancillary Restaurant/Bar and Alterations and Additions |
||
|
Property description: |
|||
|
3 Shirley Street BYRON BAY |
|||
|
Parcel No/s: |
|||
|
Applicant: |
Planners North |
||
|
Owner: |
Byron Nominees Pty Ltd |
||
|
Zoning: |
R3 Medium Density Residential Byron LEP 2014, 7(f2) (Urban Coastal Lands Zone) LEP 1988 |
||
|
Date received: |
26 August 2024 |
||
|
Integrated / Designated Development: |
☒ Integrated |
☐ Designated |
☐ Not applicable |
|
Concurrence required |
Yes – CNR 72731. Section 100B Rural Fires Act 1997 |
||
|
Public notification or exhibition: |
- Level 2 advertising under Council’s Community Participation Plan. - Exhibition period: 4 September 2024 to 17 September 2024 - Submissions received: One (1) - Submissions acknowledged: ☒ Yes ☐ No ☐ N/A |
||
|
Variation request to Development Standards under an EPI (e.g., clause 4.6) |
Name of clause: Height of Buildings Clause number: 4.3 Percentage value of variation sought: 18% Percentage value of the variation approved: Recommend approval of the variation. Brief justification for the variation – The proposed lift overrun structure will provide access to the roof top swimming pool for persons with limited mobility while resulting in only a minor change to the building’s overall bulk, scale, and visual appearance. |
||
|
Estimated cost |
$528,350.00 |
||
|
Delegation to determine |
Council – Variation to Development Standard >10%. |
||
|
Issues |
Exceedance of 9m height limit for lift overrun/pergola. Noise and amenity impacts. Public access to restaurant not supported. Amendment to car parking and access design required. |
||
Summary:
This development application (DA) seeks approval to change the use of an approved 20-room boutique motel at 3-7 Shirley Street, Byron Bay, to serviced apartments and to undertake various alterations and additions to the design.
The proposed changes include:
(a) Increasing the number apartments from 20 to 21.
(b) Altering the internal floor plan and room configuration.
(c) Altering the design of roof-top and ground floor swimming pools.
(d) Moving the ancillary restaurant/bar to a separate outbuilding.
(e) Adding a new lift access structure and pergola to the roof terrace.
The motel was originally approved via DA 10.2014.398.1 on 16 July 2014. Various extensions and modifications to the consent have been granted between 2014 and 2023 which have altered the appearance of the building, increased the number of guest suites from 16 to 20, and added a rooftop terrace and swimming pool.
The motel has not been constructed although development consent 10.2014.398.1 (as modified) has been physically commenced and is in force. Due to the extent of changes, the proponent is aiming to alter the design and use of the building through a new development application rather than through a modification application.
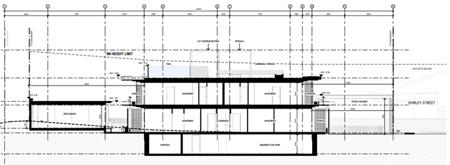
A key design change is the inclusion of a new lift to provide access to the rooftop terrace and swimming pool area. The lift overrun structure and attached pergola have a maximum height of 10.62m above existing ground level which exceeds the 9m height limit under Byron Local Environmental Plan 2014 (LEP 2014) by 1.62m or 18% of the development standard. The remainder of the roof top elements are well within the 9 metre height limit for this site
The application is accompanied by a written request to vary the height standard under Clause 4.3 of LEP 2014, and it is considered that strict compliance is unreasonable or unnecessary in this instance and that there are sufficient environmental planning grounds to vary the controls. The proposed lift will enable a diverse range of persons to take advantage of recreation facilities within the complex while resulting in only a minor change to the building’s overall bulk, scale, and visual appearance.
A small restaurant / bar is proposed at the rear of the site which is intended to be open to the public. Chapter B4 of Byron Development Control Plan 2014 requires 12 car parking spaces to be provided for the restaurant however only two additional spaces will be available, resulting in a deficit of 10 spaces. To address the car parking shortfall, a condition is recommended that prevents the restaurant / bar from being open to the public. A similar provision was included in the most recent modification to the motel consent (10.2014.398.5) and imposing such a condition would ensure consistency with the current approval.
Several design conditions have been carried forward which require minor amendments to the Porte Cochère (covered entrance) and basement car parking level. These amendments are recommended to ensure there is sufficient room for waste collection vehicles to pass through the site in a forward direction and to ensure the basement design meets relevant engineering and access standards.
In conclusion, the proposed development is considered to be an appropriate response to the site’s attributes and will enhance the function and amenity of the building. The overall design is relatively unchanged from an architectural perspective and the inclusion of a new lift servicing the roof terrace will enable persons with limited mobility to access recreation facilities while having only a minor impact on the building’s perceived height and visual appearance.
The development application is recommended for approval subject to the conditions listed in Attachment 1.
NOTE TO COUNCILLORS:
In accordance with the provisions of S375A of the Local Government Act 1993, a Division is to be called whenever a motion for a planning decision is put to the meeting, for the purpose of recording voting on planning matters. Pursuant to clause 2(a) under the heading Matters to be Included in Minutes of Council Meetings of Council's adopted Code of Meeting Practice (as amended) a Division will be deemed to have been called by the mover and seconder of all motions relating to this report.
RECOMMENDATION:
That pursuant to Section 4.16 of the Environmental Planning and Assessment Act 1979, Development Application No. 10.2024.290.1 for change of use from motel to serviced apartments including ancillary restaurant/bar and alterations and additions, be granted consent subject to the conditions in Attachment 1 (E2025/26660).
1 DA
10.2024.290.1 Recommended Conditions of Consent, E2025/26660 ![]()
2 DA
10.2024.290.1 Architectural Plans, E2025/26504
![]()
3 DA
10.2024.290.1 Noise Report, E2025/26505
![]()
4 DA
10.2024.290.1 Engineering Plans, E2025/29208
![]()
5 DA
10.2024.290.1 Submission (redacted), E2025/29965
![]()
6 DA
10.2024.290.1 Clause 4.6 Written Request to Vary Height Standard, E2024/96739 ![]()
7 DA
10.2024.290.1 Landscape Design, E2024/96738
![]()

Assessment:
History relevant to the development application
The subject site comprises a group of six lots at the eastern end of Shirley Street approximately 250m from the Byron Bay town centre. Currently, the lots are occupied by three single storey dwelling houses dating to the 1950s.
On 16 July 2014, Council granted consent to development application 10.2014.398.1, which sought approval to demolish the existing houses and construct a 16-room boutique motel with restaurant, spa, and roof-top swimming pool. The consent was subsequently extended and modified several times between 2014 to 2023, allowing the motel design to be changed and the number of rooms expanded from 16 to 20.
Development consent 10.2014.398.1 has been physically commenced and is in force, however the motel building has not been constructed.
The current proposal aims to change the use of the building to serviced apartments, and to carryout various alterations and additions to the approved design under a separate development application. The proponent will therefore need to utilise two development consents to realise the development, should consent be granted to the current application.
A chronology of determinations for the site are listed below:
· 10.2014.398.1 – On 16 July 2014, Council granted deferred commencement consent to Development Application 10.2014.398.1 for a 16-room boutique motel with restaurant, spa, roof top terrace, swimming pools and basement carparking for 27 vehicles.
· 10.2014.398.2 – On 14 April 2014, approval was granted to Modification Application 10.2014.398.2 which permitted an extension of the deferred commencement condition timeframe from 12-months to 36-months.
· 10.2014.398.3 – On 26 October 2018, approval was granted to Modification Application 10.2014.398.3 for a second extension of the deferred commencement timeframe, extending it from 36-months to 5-years.
· 10.2014.398.4 – On 11 February 2020, approval was granted to Modification Application 10.2014.398.4 which permitted design modifications including an increase in the number of motel rooms from 16 to 26, extension to basement car parking, deletion of spa treatment rooms and a reduction in communal bar and dining spaces.
· 10.2014.398.5 – On 17 August 2023, approval was granted to Modification Application 10.2014.398.5 for various design changes including a decrease of guest suites from 26 to 21 and inclusion of a gym and lobby within the basement carpark.
Description of the proposed development
This application seeks approval to change the use of an approved 20-room motel to serviced apartments, and to undertake alterations and additions to enhance the design and function of the building.
The proposal involves:
(a) Changing the use of the motel to serviced apartments.
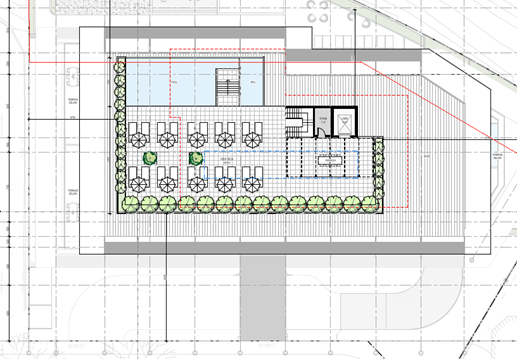
(b) Addition of a lift structure and new pergola to the rooftop pool area.
(c) Increase the size of the roof top pool from 51m2 to 70m2 and relocate to the northern side of the building.
(d) Alter the floor plan and unit mix by:
(i) Removing Unit G11 (2-bedroom) and replacing it with a small restaurant and bar adjacent to the ground floor swimming pool. The change also involves removal of a small landscape planting area facing the railway tracks.
(ii) Replace the approved ground floor restaurant/bar with two single bedroom units, increasing the total number of units from 20 to 21.
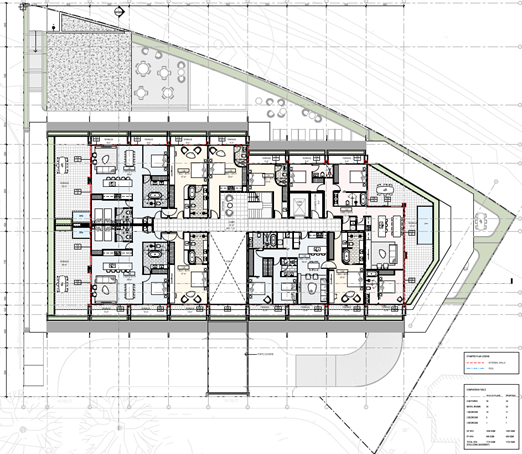
(e) The serviced apartment complex will have the following unit mix:
Ground Floor:
(i) 7 x 1-bedroom apartments.
(ii) 5 x 2-bedroom apartments.
First Floor:
(i) 5 x 1-bedroom apartments.
(ii) 3 x 2-bedroom apartments.
(iii) 1 x 3-bedroom apartment.
(f) Reconfigure the ground floor pool and outdoor entertainment area by reducing the size of the swimming pool and increasing the size of the outdoor sundeck.
(g) Minor amendment to the disabled basement carparking layout.
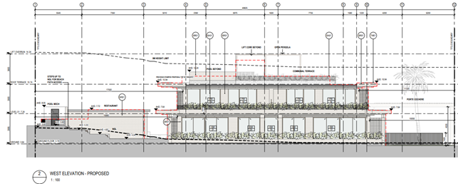
Architectural drawings and visualization of the proposed development are provided in Figures 1-9.

Figure 1: Visualisation of the development in view from Shirley Street.
Figure 2: Southern
elevation facing Shirley Street.
Figure 3: Northern
elevation.
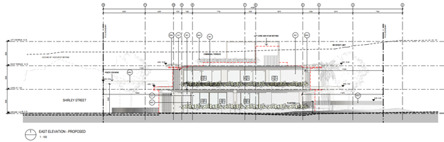
Figure 4: Eastern
elevation.
Figure 5: Western
elevation.
Figure 6: Section B-B.
Figure 7: Basement plan.
Figure 8: Ground floor
plan.
Figure 9: First floor
plan.
Figure 9: Roof plan and
pool deck.
Description of the site
The subject site is commonly known as 3-7 Shirley Street, Byron Bay, and comprises six properties at the eastern end of Shirley Street legally described as:
· Lot 1 DP 123737.
· Lot A DP 346870.
· Lot B DP 346870.
· Lot 1 DP 1068193.
· Lot 2 DP 1073355.
· Lot 13 DP 1143269.
The property is zoned R3 Medium Density pursuant to Byron LEP 2014 and 7(f2) (Urban Coastal Lands Zone) under Byron LEP 1988. The site has a total area of 2283m2 and features relatively flat topography. The property adjoins the North Coast Railway Line along its rear boundary and overlooks the First Sun Caravan Park to the north. Adjoining development to the west and east comprises holiday apartments and medium density residential development. Byron Bay Police Station and the Byron CoLab community hub is located on the opposite side of Shirley Street.
The site is within walking distance of Byron Bay town centre and main beach with other development in Shirley Street including motels, serviced apartments, backpacker hostels and holiday homes. The North Coast Railway Line is currently utilised by a regular ‘Solar Train’ service from the Elements Resort at Bayshore Drive into Byron Bay.

Figure 10: Aerial image of site.
Figure 11: Aerial image
of site with zoning overlay. Dark Pink: R3 Medium Density Residential, Grey:
7(f2) (Urban Coastal Lands Zone.
Figure 12: View of site
from Shirley Street.
Figure 13: View of site
entrance looking east towards Byron Bay town centre.
Figure 14: View of site
entrance looking west along Shirley Street.
Figure 5: View of site entrance looking west along Shirley Street.
SUMMARY OF REFERRALS
|
Referral |
Issue |
|
Environmental Health Officer |
Council’s Environmental Health Officer recommended approval subject to conditions for noise management. |
|
Development Engineer |
Council’s Development Engineer recommended approval subject to conditions preventing the ancillary restaurant from being open to the public due to insufficient car parking. Conditions were also recommended requiring amendments to the basement carparking layout and access to comply with relevant engineering standards. The conditions are similar to those imposed on the motel approved under development consent 10.2014.398.5. |
|
Systems Planning Officer |
Council’s System’s Planning Officer commented that water and sewer contributions will be payable. |
|
Rural Fire Service (100B) |
General Terms of Approval were issues by the Rural Fire Service on 10 October 2024. |
SECTION 4.46 INTEGRATED DEVELOPMENT
The proposal is integrated development requiring a Bush Fire Safety Authority (BFSA) under s100B of the Rural Fires Act 1997. General Terms of Approval and a BFSA were received by the Rural Fire Service on 4 October 2024.
SECTION 4.15C – MATTERS FOR CONSIDERATION – DISCUSSION OF ISSUES
Having regard to the matters for consideration detailed in Section 4.15(1) of the Environmental Planning & Assessment Act 1979 (EP&A Act), the following is a summary of the evaluation of the issues.
State Environmental Planning Policies (SEPP)
Resilience and Hazards SEPP 2021
Chapter 2 Coastal management
The site is within the Coastal Use Area and the Littoral Rainforest Proximity Area under the Resilience and Hazards SEPP. A small patch of littoral rainforest is located in the First Sun Holiday Park, approx. 25m to the north.

Figure 15. A small patch of littoral rainforest 25m to the north.
The proposed development is unlikely to adversely affect the small patch of littoral rainforest located on the opposite side of the railway line. Stormwater will be directed towards the Council drainage system in Shirley Street, and there will be no change to the quantity or quality of surface and ground water flows entering the littoral rainforest mapped area.
The proposed development will not have a significantly adverse impact on the coastal environment and is satisfactory having regard to the matters for consideration under Chapter 2 of the Resilience and Hazards SEPP.
Chapter 4 Remediation of land
A contaminated land assessment was carried out for DA 10.2014.398.1 which identified minor elevated levels of lead on the site. Conditions were imposed at the time requiring a Remedial Action Plan to be prepared and approved by Council prior to commencement, ensuring that any lead contamination is suitably remediated.
Based on the available information, Council can be satisfied that the land will be suitable for the proposed serviced apartment use subject to the remediation works outlined in Condition 8 of Development Consent 10.2014.398.5 being completed. A condition is recommended requiring certification of such works be provided to Council prior to the commencement of any building works associated with the subject development.
Transport and Infrastructure SEPP 2021
Section 2.119 Development with frontage to classified road
The proposed serviced apartment complex will have substantially the same traffic impact as the approved motel development and will not adversely affect the safety or efficiency of Shirley Street (a regional classified road) due to increases in traffic generation, emission of smoke or dust, or the design of the vehicular access. It is noted there is no practical alternative access to the site that could be utilised in the circumstances.
The proposed development is satisfactory having regard to the matters for consideration under Section 2.119 of the Transport and Infrastructure SEPP.
Sustainable Buildings SEPP
Chapter 3 Standards for non-residential development does not apply to the proposed development as the estimated cost of development is less than $5m. Chapter 2 standards for residential development–BASIX also does not apply as the development is not for the purposes of residential accommodation.
4.2A Byron Local Environmental Plan 2014 (LEP 2014)
In accordance with LEP 2014 clauses 1.4 and 2.1 – 2.3:
(a) The proposed development is defined in the LEP 2014 Dictionary as serviced apartments and ancillary restaurant.
(b) The land is partially within the R3 Medium Density Residential zone under the LEP 2014 Land Zoning Map and partially within the 7(f2) (Urban Coastal Lands Zone) under the LEP 1988 Land Zoning Map.
(c) The proposed development is permitted with consent; and
(d) Regard is had for the Zone Objectives as follows:
|
Zone Objective R3 Medium Density Residential |
Consideration |
|
To provide for the housing needs of the community within a medium density residential environment. |
The proposal is not incompatible with the zone objectives. |
|
To provide a variety of housing types within a medium density residential environment. |
|
|
To enable other land uses that provide facilities or services to meet the day to day needs of residents. |
The remaining checked clauses have been taken into consideration in the assessment of the subject development application in accordance with Section 4.15 of the EP&A Act. The proposed development complies with all clauses of LEP 2014 (in some cases subject to conditions and/or to the satisfaction of other assessing officers).
Part 4 Principal development standards
|
Provision |
Compliance |
Comment |
||||||||||||
|
Clause 4.3 Height of buildings |
No, Clause 4.6 request submitted. |
A maximum building height of 9m applies to the part of the site. The proposed development seeks consent for a lift overrun structure and roof-top pergola and with a maximum height of 10.62m above existing ground level. The lift overrun exceeds the 9m height limit by 1.62m or 18% of the development standard. The applicant has submitted a written request to vary the development standard in accordance with Clause 4.6 of LEP 2014. Refer to LEP 2014 discussion of issues. |
||||||||||||
|
Clause 4.4 Floor space ratio |
Yes |
The Floor Space Ratio Map under LEP 2014 identifies a Floor Space Ratio (FSR) of 0.6:1 for the subject site. The proposed serviced apartment complex has a FSR of 0.6:1 and complies with the development standard as show in the following table:
Note. The new design increases the GFA of the restaurant at the rear of the site by 24m2. The restaurant component is located in the 7(f2) (Urban Coastal Lands Zone) under LEP 1988 and therefore does not contribute to the above FSR calculation under LEP 2014. |
Part 6 Additional local provisions
|
Provision |
Compliance |
Comment |
|
6.1 Acid sulfate soils |
Yes |
Appropriate measures to manage acid sulfate soils are recommended in accordance with existing conditions under Development Consent 10.2014.398.5. |
|
6.2 Earthworks |
Yes |
Drainage and structural stability is acceptable subject to conditions of consent. |
|
6.6 Essential services |
Yes |
The site is serviced by reticulated water, mains sewage, electricity, and telecommunications. Vehicular access to the site from Shirley Street is adequate. |
Byron LEP 2014 – Discussion of issues
Clause 4.6 Exceptions to Development Standards
The Height of Building Map under Clause 4.3 of LEP 2014 specifies a maximum building height of 9m for the R3 zoned part of the site.
The proposed lift overrun structure and rooftop pergola have a maximum height of 10.62m above existing ground level which exceeds the 9m maximum building height by 1.62m or 18% of the development standard. By comparison, the approved motel building has a maximum height of 9.87m above existing ground level, which is 870mm, or 9.7% above the height limit.
The purpose of the new lift is to provide access for patrons with limited mobility or those with prams and walking aids to the rooftop swimming pool and entertainment area.
A comparison of the proposed and approved building heights is illustrated in Table 1.
Table 1: Height comparison of approved and proposed buildings.
|
Development |
Max. Height |
Height Exceedance |
Encroaching building element |
|
Approved Motel (10.2014.398.5) |
9.87m |
870mm (9.7%) |
Roof top stair entrance |
|
Proposed Serviced Apartments |
10.62m |
1,620mm (18%) |
Roof top lift overrun and pergola. |
An extract of the elevations are reproduced below with height exceedances highlighted in yellow. The height of the approved motel building is illustrated with a red-dashed line for comparison.

Figure 17: Extract of Shirley Street elevation with 9m building height exceedance highlighted in yellow.

Figure 18: Extract of western elevation with 9m building height exceedance highlighted in yellow.

Figure 19: Streetscape perspective with 9m building height exceedance shown in relation to adjoining development.
Applicant's Written Request - Clause 4.6(3)(a) and (b)
A written request has been submitted to Council in accordance with Clause 4.3 of Byron LEP 2014 seeking to justify the contravention of the development standard. The written request is included in Attachment 6.
In summary, the applicant seeks to justify the contravention of the minimum floor level standard on the following basis:
(a) That compliance with the standard is unreasonable and unnecessary in the circumstances of the case, because the proposed height variation will not significantly add to the development's perceived scale, bulk, or intensity. The applicant also contends that the proposed building elements exceeding the 9m height limit are compatible with the streetscape in the locality.
(b) That there are sufficient environmental planning grounds to justify contravening the standard as the proposed elements exceeding the building height limit are required to provide disabled access to the rooftop entertaining area and will not result in adverse impacts on surrounding properties or the streetscape.
Consideration of Applicant’s Written Request Clause 4.6(3)
Development consent must not be granted to development that contravenes a development standard unless the consent authority is satisfied the applicant has demonstrated that—
(a) compliance with the development standard is unreasonable or unnecessary in the circumstances, and
(b) there are sufficient environmental planning grounds to justify the contravention of the development standard.
Does the written request adequately address those issues at Clause 4.6(3)(a)?
The applicant's written request has adequately addressed Clause 4.6(3)(a) of LEP 2014 as it demonstrates that the objectives of the development standard are achieved notwithstanding non-compliance with the numerical value.
In particular:
(a) The new lift over run and pergola represents a relatively small increase in building height compared to the approved motel development and will not substantially change the bulk, scale or visual appearance of the development in views from Shirley Street and surrounding public places.
(b) The height and scale of the development will remain compatible with the character of the surrounding area, which is typified by serviced apartments, motels, and residential flat buildings generally with a height of 2 to 3 storeys. The development also provides a suitable height transition between a higher serviced apartment complex to the west with a height of 11.5m, and a smaller residential flat building to the east with a height of 9m.
(c) In relation to external impacts, the design amendments will not substantially affect the views, privacy or solar access of adjoining development. Any minor increase in overshadowing from the lift overrun structure will be cast towards Shirley Street and will not affect the amenity of neighbouring properties.
Does the written request adequately address those issues at clause 4.6(3)(b)?
The applicant's written request has adequately addressed Clause 4.6(3)(b) of LEP 2014 as it demonstrates that there are sufficient environmental planning grounds to justify contravening the development standard. The proposed lift will enable a diverse range of patrons with different mobility needs to take advantage of recreation facilities within the complex. The provision of improved access justifies a minor increase in building height, given the relatively small change to the building’s overall bulk, scale, and visual appearance.
Conclusion
For the reasons provided above the requested variation to the maximum floor level is supported as the applicant's written request has adequately addressed the matters required to be addressed by Clause 4.6 of the Byron LEP 2014 and the proposed development would be in the public interest because it is generally consistent with the objectives of standard and the zoning of the site.
4.2B Byron Local Environmental Plan 1988 (LEP 1988)
Part of the site adjacent to the railway corridor is zoned 7(f2) Urban Coastal Lands under Byron LEP 1988. The following assessment comments are provided:
In accordance with LEP 1988 clauses 5, 8 and 9:
(a) The proposed development is defined in the LEP 1988 Dictionary as tourist facilities;
(b) The land is within the LEP1988 7(f2) (Urban Coastal Lands Zone) according to the map under LEP 1988.
(c) The proposed development is permissible with consent in the 7(f2) zone.
(d) The proposed development is consistent with the relevant objectives of the Zone for the following reasons:
|
Zone Objective 7(f2) (Urban Coastal Lands Zone) |
Consideration |
|
(a) to identify urban land likely to be influenced by coastal processes, |
The proposed development is compatible with the zone objectives. |
|
(b) to permit urban development within the zone subject to the council having due consideration to the intensity of that development and the likelihood of such development being adversely affected by, or adversely affecting, coastal processes, |
|
|
(c) to permit urban development within the zone subject to the council having due consideration to— (i) the need to relocate buildings in the long term, (ii) the need for development consent to be limited to a particular period, (iii) the form, bulk, intensity and nature of the development, and (iv) continued safe public access to the site, and |
|
|
(d) to allow detailed provisions to be made, by means of a development control plan, to set aside specific areas within the zone for different land uses and intensities of development. |
Part 2 General restrictions on development of land
|
Provision |
Compliance |
Comment |
|
9 - Zone objectives and development control table |
Yes |
Serviced apartments are not a defined land use under LEP 1988. The proposed development is most accurately characterised as tourist facilities in the LEP 1988 Dictionary, which is defined as follows: “tourist facilities means an establishment providing holiday accommodation or recreation and may include a boat shed, boat landing facility, holiday cabin, hotel, house-boat, marina, motel, playground, primitive camping ground, restaurant, water sport facility or a club used in conjunction with any such facility”. Tourist facilities are permitted with consent in the 7(f2) (Urban Coastal Lands Zone). For the purpose of describing the development, it acceptable to use the term serviced apartments, which can be deemed a subtype of tourist facilities. |
Part 3 Special provisions
|
Provision |
Compliance |
Comment |
|
32 - Development within Zone No 7 (f2) (Urban Coastal Land Zone)
|
Yes |
The site is within Precinct 2 under Part J Coastal Erosion Lands of Byron DCP 2010. Conditions of consent are recommended for the consent to lapse in the event that the site is potentially at risk of coastal erosion and for the building to be demolished. The use of the site for tourist accommodation as opposed to permanent residential development is considered appropriate for this location. It is noted amendment No.66 does not apply to the site which prohibited motels and tourist facilities in some 7(f2) Zone locations (e.g., Belongil Beach). |
|
40 Height |
Yes |
A maximum building height of 9m applies to the 7(f2) zoned part of the land. In addition, the topmost floor level of the building must not exceed 4.5m above exiting ground level. The existing elements of the building within the 7(f2) zone comply with the relevant height limitations. The rooftop entertainment area is located outside the 7(f2) (Urban Coastal Land Zone). |
|
45 Provision of services |
Yes |
The site is serviced by reticulated water, mains sewage, electricity, and telecommunications. |
|
63 Development on land identified on the Acid Sulfate Soils Planning Map |
Yes |
Appropriate measures to manage acid sulfate soils are recommended in accordance with existing conditions under Development Consent 10.2014.398.5. |
4.3 Any proposed Instrument that has been the subject of public consultation and has been notified to the consent authority
There are no draft EPIs with relevance to the subject application.
4.4A Byron Shire Development Control Plan 2014 (DCP 2014)
Chapter B3 Services
|
Provision |
Compliance |
Comment |
|
B3.2.3 Stormwater Management |
Yes |
Stormwater management remains relatively unchanged from the approved motel development. Roof water will be directed to the Council drainage system in Shirley Street via detention and treatment tanks. Drainage of the basement carpark will be achieved using a pump out system as there is insufficient fall to drain the basement by gravity. Conditions are recommended for detailed engineering plans and specifications for the stormwater system to be provided for approval with the construction certificate application. |
|
B3.2.4 Sedimentation and Erosion Control Measures |
Yes, subject to conditions |
A condition is recommended for sediment and erosion control plan to be prepared and implemented during construction. |
Chapter B4 Traffic Planning, Vehicle Parking, Circulation and Access
|
Provision |
Compliance |
Comment |
||||||||||||||||||||||||||||||||||
|
B4.2.3 Vehicle Access and Manoeuvring Areas |
Yes, subject to conditions |
The curved entry in the basement carpark is not strictly in accordance with AS2890.1 and could potentially result in scraping. A similar issue was noted for the motel design under DA 10.2014.398.5. Council’s Development Engineer has recommended that amended carparking and manoeuvring plans be submitted for approval with the construction certificate application demonstrating compliance with AS2890 and relevant engineering standards. The carparking entrance may need to be widened and/or realigned which is considered achievable subject to minor design amendments. |
||||||||||||||||||||||||||||||||||
|
B4.2.5 Car Parking Requirements |
Yes, subject to conditions |
The proposed development generates demand for 40 carparking spaces according to Table B4.2.12 of DCP 2014 as detailed below: Serviced apartments
Restaurant
The submitted basement plan identifies 28 carparking spaces and two loading bays which falls short of the minimum requirements by 12 spaces. Sufficient parking is available for the serviced apartment use, but not for the additional restaurant use which the applicant has stated will be open to the public, thus generating additional parking demand. To resolve the parking shortfall, it is recommended that conditions be imposed that restrict the use of the restaurant and bar to patrons of the serviced apartment complex and their guests. It is noted that a similar requirement was imposed on the motel consent due to a lack of carparking and the two developments are generally the same in that regard. If the proponent wishes to pursue a public restaurant/bar, further car parking would be required on-site and an alternate design proposed with a larger basement. |
||||||||||||||||||||||||||||||||||
Chapter B8 Waste Minimisation and Management
|
Provision |
Compliance |
Comment |
|
B8.2.2 Site Waste Minimisation and Management Plans |
Yes, subject to conditions |
The amount and type of waste generated by the serviced apartment use will be similar to the approved motel use. A concealed garbage store area is located at the front of the site with sufficient capacity to store waste from the proposed serviced apartment complex. |
Chapter B9 Landscaping
|
Provision |
Compliance |
Comment |
|
B9.6.1 Landscaping of Tourist and Visitor Accommodation |
Yes |
The site layout provides 284m2 (12%) site coverage of landscaping in garden beds and raised planters. The design complies with Part B9.6.1 in relation to landscaping. |
Chapter B13 Access and Mobility
|
Provision |
Compliance |
Comment |
|
B13.2.2 Multi Dwelling Housing, Attached Dwellings, Residential Flat Buildings, Shop Top Housing and Serviced Apartments |
Yes, subject to conditions |
Part B13.2.2, Prescriptive Measure 1(a), provides that 10% of dwelling units, rounded up to the nearest whole, should be adaptable housing in accordance with AS1428.1 – Design for Access and Mobility. The proposed development has 21 serviced apartments, and therefore requires the provision of 3 adaptable units. The submitted plans do not identify any adaptable units however this can be achieved through the imposition of conditions of consent. Minor changes to the layout of 3 units will be required, along with the provision of two additional disabled basement carparking spaces. |
Chapter B14 Excavation and Fill
|
Provision |
Compliance |
Comment |
|
B14.2 Excavation and Fill in all Zones |
Meets performance criteria
|
Excavation to a depth of 2.8m is proposed to construct a basement level carpark. The excavation will be contained within the building footprint and will not have a significantly adverse impact on the visual amenity of the area. The design of the entrance to the basement carpark is in keeping with development on the northern side of Shirley Street, which is generally a tourist precinct made up of motels and serviced apartments. |
Chapter C3 Visually Prominent Sites, Visually Prominent Development and View Sharing
|
Provision |
Compliance |
Comment |
|
C3.2.2 Assessment of Impacts on Views and View Sharing |
Yes |
No substantial changes to the architectural style of the building is proposed. Further visual impact assessment under Chapter C3 is not necessary. |
Chapter D3 Tourist Accommodation
|
Provision |
Compliance |
Comment |
|
D3.2.2 Character and Design in Residential, Village and Tourist Zones |
Yes |
The external built form and appearance of the proposed building will be similar to the approved motel development. The proposal is compatible with the existing and desired future character of the Shirley Street precinct which is generally characterised by 2-3 storey medium density development. |
Chapter E5 Certain Locations in Byron Bay and Ewingsdale
|
Provision |
Compliance |
Comment |
|
E5.4.1 Development and servicing of land affected by predicted coastal hazards |
Yes, subject to conditions |
The site is within the Byron Bay Coastal Hazards Map. A condition is recommended requiring the development to cease should the erosion escarpment come within 50m of the proposed development in accordance with Part J of DCP 2010. |
4.4B Byron Shire Development Control Plan 2010 (DCP 2010)
The provisions of DCP 2010 apply in part to the area of the property zoned 7(f2) under Byron LEP 1988. The following comments are provided.
Chapter 1: Part C Residential Development
|
Provision |
Compliance |
Comment |
|
C2.6 Element – Setback from Street, Side and Rear Boundaries |
Yes, meets performance criteria |
Part of the restaurant and pool pump enclosure building have a nil setback from the northern boundary that adjoins the railway line. The proposed setback will not have any significant impact in relation to views, solar access, or view loss and is considered to be acceptable having regard to the relevant objectives and performance criteria of C2.6. |
|
C9.10 Element – Sound Proofing |
Yes |
The proposed serviced apartments will have adequate acoustic properties to minimise sound disturbance and maintain an appropriate level of amenity for guests. |
Chapter 1: Part H Landscaping
|
Provision |
Compliance |
Comment |
|
H5.1 Element – Area, Treatment and Screening |
Yes |
The main open space area in the 7(f2) (Urban Coastal Lands) zoned part of the site provides outdoor furniture and equipment and is sufficient to provide adequate recreation and amenity for guests of the tourist facility. |
|
H6.1 Element – Landscaping of Commercial Developments |
Yes |
More than 10% of the site is landscaped in accordance with the provisions of Element H6.1. |
Chapter 1: Part J Coastal Erosion Lands
|
Provision |
Compliance |
Comment |
|
J2.2 Element – Precinct 2 – Between The Immediate Impact Line And The 50 Year Erosion Line |
Yes |
A condition is recommended requiring the serviced apartment use to cease if the erosion escarpment line comes within 50m of the proposed development. |
4.5 Environmental Planning and Assessment Regulation 2021 considerations
Division 1 Determination of development applications—the Act, s 4.15(1)(a)(iv)
Clause 61 Additional matters that consent authority must consider
A condition is recommended that requires any demolition to be carried out in accordance with AS 2601—2001: The Demolition of Structures.
Clause 62 Consideration of fire safety and 64 Consent authority may require upgrade of buildings
No upgrades to any existing or approved buildings are required under Clauses 62 or 64 of the Regulation. Fire safety and structural adequacy will be addressed through the construction certificate process.
4.6 The likely impacts of that development, including environmental impacts on both the natural and built environments, and social and economic impacts in the locality
|
Impact on: |
Likely significant impact/s? |
|
Natural environment |
No. The proposal will not have a significantly adverse impact on the natural environment of the locality. |
|
Built environment |
Noise A noise report was submitted with the application outlining a range of mitigation measures to reduce sound transmission to adjoining properties to an acceptable level. Such measures include: · Installation of a 1.5m high acoustic screen around rooftop services. · Installation of a 1.5m high acoustic glass balustrade for west, south and east facing first floor balconies. · No outdoor live music or bands. · Equipment sound power levels within the ranges proposed in this report. · Public spaces closed after 9pm. Council’s Environmental Health Officer endorsed the report recommendations and noted that the likely acoustic impacts of the rooftop pool and restaurant will be manageable subject to conditions of consent. Traffic A traffic impact assessment was submitted with the application demonstrating that the net traffic increase as a result of the development is acceptable and would have a negligible impact on the existing road network. The proposed serviced apartment use is substantially the same as the approved motel in terms of traffic generation. |
|
Social Environment |
No. The proposal will not have a significant social impact on the locality. |
|
Economic impact |
No. The proposal will not have a significant economic impact on the locality. |
|
Construction Impacts |
No. The development will generate minor impacts during its construction. Conditions of consent recommended to control hours of work, builders waste, construction noise, installation of sedimentation and erosion control measures and the like to ameliorate such impacts. |
4.7 The suitability of the site for the development
The site attributes are suitable for the proposed development subject to conditions of consent.
4.8 Submissions made in accordance with this Act or the regulations
The development application was publicly exhibited for a period of 14-days in accordance with the community participation plan. One submission was received during the exhibition period from a resident who wished to know when the existing dwellings would be demolished should consent be granted to the application. They were advised that development timelines are at the discretion of the developer and that a development consent typically lasts for 5 years.
4.9 Public interest
The proposed development is unlikely to prejudice or compromise the public interest or create an undesirable precedent.
5. DEVELOPER CONTRIBUTIONS
5.1 Water & Sewer Levies
Section 64 levies will be payable.
5.2 Developer Contributions
Section 7.12 Levy will be payable.
6. DISCLOSURE OF POLITICAL DONATIONS AND GIFTS
|
Disclosure details |
Response |
|
Has a Disclosure Statement been received in relation to this application? If Yes, Provide Disclosure Statement register reference: 91. |
Yes ☐ No ☒ |
|
Have staff received a ‘gift’ from anyone involved in this application that needs to be disclosed. |
Yes ☐ No ☒ |
7. CONCLUSION
This DA seeks approval to change the use of an approved 20-room boutique motel at 3-7 Shirley Street, Bryon Bay, to serviced apartments and to undertake various alterations and additions to the design of the building.
In conclusion, the proposed development is considered to be an appropriate response to the site’s attributes and will enhance the function and amenity of the building. The overall design is relatively unchanged from an architectural perspective and the inclusion of rooftop lift access is supported as it will enable persons with limited mobility to access recreation facilities while having only a minor impact on the building’s perceived height and visual appearance.
The development application is recommended for approval subject to conditions of consent.
Staff Reports - Sustainable Environment and Economy 13.2
Report No. 13.2 PLANNING - DA 10.2024.474.1- Removal of existing dwelling and construction of two 2 storey dwelling houses with swimming pools 7 Leslie Street Bangalow
Directorate: Sustainable Environment and Economy
Report Author: Alissa Magnifico, Senior Planner
File No: I2025/221
Proposal:
|
DA No: |
10.2024.474.1 |
|
Planning Portal ref |
PAN-493825 |
|
Proposal description: |
Removal of existing dwelling and construction of two 2 storey dwelling houses with swimming pools |
|
Property description: |
LOT: 13 DP: 6041, LOT: 12 DP: 6041 |
|
7 Leslie Street BANGALOW |
|
|
Parcel No/s: |
140840, 140830 |
|
Applicant: |
Matt Walker Town Planning |
|
Owner: |
Ms C E Christensen & Mr M J Fahey |
|
Zoning: |
R2 Low Density Residential |
|
Date received: |
7 December 2024 |
|
Type of development |
Local |
|
Public notification or exhibition: |
- Level 2 advertising under Council’s Community Participation Plan. - Exhibition period: 10/01/2025 to 23/01/2025 - Submissions received: 30 in opposition - Submissions acknowledged: ☒ Yes |
|
Concurrent approvals included with DA |
☒ W&S (68) ☒ ST (68)
|
|
Planning Review Committee |
Date of PRC: 6 February 2025 Outcome: to be determined by Council |
|
Variation request to Development Standards under an EPI (eg clause 4.6) |
Clause 4.6 – Variation to Floor Space Ratio LEP 2014 Clause 4.4 |
|
Estimated cost |
$1,190,200.00 |
|
Delegation to determine |
Council
|
|
Issues |
· Heritage values of dwelling to be removed and impact on the Bangalow Heritage Conservation Area · Non-compliant with various LEP & DCP provisions · Site Suitability |
Summary:
This application seeks approval for the removal of the existing dwelling and construction of two 2 storey dwelling houses with swimming pools at 7 Leslie Street, Bangalow is located in the Bangalow Conservation Area. The existing dwelling straddles Lots 12 and 13 DP 6041 and has a total area of approximately 608m2.
Although the subject property is not specifically listed as a heritage item, 7 Leslie Street remains a noted contributory building within the statutory Bangalow Heritage Conservation Area under Byron LEP 2014. The existing dwelling comprises a single storey Federation style weatherboard building with generous side and front setbacks. It was built circa 1920 and is within the period of significance of 1890 to 1940 for the Bangalow Heritage Conservation Area. Council’s Heritage Advisor notes in part (See attachment 3) the proposal would remove a noted contributory element of the Bangalow HCA, and the application lack justification, and the Statement of Heritage Impact report is inadequate. The advisor then goes on to recommend the following:
The proposed removal/relocation of the historic dwelling and proposed redevelopment is not supported as it is in direct conflict with the adopted statutory policies framework to conserve the heritage significance, fabric, setting and views of the Bangalow Heritage Conservation Area, and with the detailed policies of Byron DCP 2014 which supplement these statutory provisions
On 13/6/2024 a pre-lodgement meeting was held with the current owners and applicant to discuss the design of 2 proposed new dwellings, in relation to site filling and stormwater management. After this meeting, a follow up email was sent by Council on 9/7/2024 to the applicant noting,
“any proposal to demolish or relocate the dwelling may likely be unsupported from a heritage perspective. I recommend the owners set up a Heritage Advisory meeting with Deborah Wray to discuss their proposal prior to lodging a development application.”
No Heritage Advisory meeting was held prior to the submission of this application.
On 17 March 2025 the applicant was informed that the proposed application was not supported due to heritage impacts. The opportunity was given to withdraw the application prior to it being reported to Council with a recommendation for refusal. On 18 March 2025 the owner advised they did not wish to withdraw the application and at the time of writing this report the application had not been withdrawn.
It is considered the proposed removal of the historic dwelling and proposed redevelopment is in direct conflict with the adopted heritage policies of:
a) Byron LEP 2014
b) Byron DCP 2014
c) Management Recommendations of the State Heritage Inventory 1260056 for the Bangalow Conservation Area
d) Icomos Burra Charter 2013.
The proposed development is not supported as it does not conserve the heritage significance, fabric, setting and views of the Bangalow Heritage Conservation Area, and is not in the public interest.
The application is recommended for refusal for the reasons listed below.
Further, it is recommended that Council now proceed with an LEP amendment to include the property 7 Leslie Street Bangalow in Schedule 5 of LEP 2014, as per Resolution 24-381 (4) and listing details in Attachment 4.
NOTE TO COUNCILLORS:
In accordance with the provisions of S375A of the Local Government Act 1993, a Division is to be called whenever a motion for a planning decision is put to the meeting, for the purpose of recording voting on planning matters. Pursuant to clause 2(a) under the heading Matters to be Included in Minutes of Council Meetings of Council's adopted Code of Meeting Practice (as amended) a Division will be deemed to have been called by the mover and seconder of all motions relating to this report.
RECOMMENDATION:
That Council:
1. Pursuant to Section 4.16 of the Environmental Planning & Assessment Act 1979, Development Application No. 10.2024.474.1 for Removal of existing dwelling and construction of two 2 storey dwelling houses with swimming pools be refused for the following reasons:
a) Pursuant to Section 4.15 (1)(a)(i) of the Environmental Planning and Assessment Act 1979, the proposed development is inconsistent with Clause 5.10 of Byron Local Environmental Plan. The proposal does not conserve the heritage significance of the Bangalow Heritage Conservation area, including associated fabric, settings and views.
b) Pursuant to Section 4.15 (1)(a)(i) of the Environmental Planning and Assessment Act 1979, the proposed development is inconsistent with Clause 4.4 Floor Space Ration of Byron Local Environmental Plan.
c) Pursuant to Section 4.15 (1)(a)(iii) of the Environmental Planning and Assessment Act 1979, the proposed development is inconsistent with Chapter C1 of Byron Development Control Plan 2014:
i. The proposed application and provided Heritage Impact Statement lacks justification as to why the removal of the contributory item is required and does not demonstrate whether other options which may have less impact have been considered and why they were considered less viable.
ii. The proposal conflicts with Chapter C1.6.1(3) which states that development in all areas must remain single storey. The proposed two x two storey dwellings with larger building footprints and paved areas will alter the historic and aesthetic significance of the Heritage Conservation Area.
d) Pursuant to Section 4.15 (1)(a)(iii) of the Environmental Planning and Assessment Act 1979, the proposed development is inconsistent with the objectives and performance criteria of Section E2.4 Development within the Bangalow Heritage Conservation Area, Chapter E2 of Byron Development Control Plan 2014. The proposed development does not reinforce the existing low rise historical village feel of Bangalow.
e) Pursuant to Section 4.15 (1)(a)(iii) of the Environmental Planning and Assessment Act 1979, the proposed development is inconsistent with Chapter D1 of Byron DCP 2014 in terms of the Building Height Plane.
f) Pursuant to Section 4.15(1)(b) of the Environmental Planning and Assessment Act 1979 the proposed development will have an unacceptable impact on the built environment in the Bangalow Heritage Conservation Area.
g) Pursuant to Section 4.15(1)(c) of the Environmental Planning and Assessment Act 1979, the proposal has not demonstrated that the site is suitable for the proposed development.
h) Pursuant to Section 4. 15(1)(e) of the Environmental Planning and Assessment Act 1979 the proposal is contrary to the public interest and would create an undesirable precedent.
2. Proceeds with a LEP amendment to include the property 7 Leslie Street Bangalow in Schedule 5 of LEP 2014, as per Resolution 24-381 (4) and listing details in Attachment 4.
1 10.2024.474.1
- Submissions (Redacted), E2025/12989
![]()
2 10.2024.474.1
- Architectural Plans, E2025/29583
![]()
3 10.2024.474.1
- Heritage Advisors comments, E2025/15703
![]()
4 Listing
details - Item: 7 Leslie St Bangalow, E2024/6936
![]()

Figure 1: Locality Plan
Report Assessment:
1. INTRODUCTION
1.1 History/Background
5.1984.2381.1 Building Additions approved 03/08/1984
10.1999.85.1 Additions to dwelling approved 01/03/1999
Heritage Schedule Request
In late 2020, a request was made to Byron Shire Council by the then owners, T. and J. Coleman, for the inclusion of their property 7 Leslie Street, Bangalow on the heritage schedule of Byron LEP 2014. A site inspection of the property, including the interior, was made by Council’s Heritage Advisor on 4 December 2020.
Draft Planning Proposal
In 2023, Council prepared a draft Planning Proposal for the addition of several draft heritage items in Byron LEP 2014 including 7 Leslie Street. On 12 October 2023, Council resolved to adopt the Draft Planning Proposal. A Gateway determination was issued on 13 November and the Planning Proposal was placed on public exhibition from 18 March 2024 to 17 April 2024. An objection was lodged to the proposed heritage listing by the current owner. Council in considering the submissions at its meeting on 27 June 2024 resolved to remove the property from the Planning Proposal as a draft additional heritage item. The resolution also included (point 4) that Council continues to investigate and consider a future LEP Amendment for the sites removed.
Links to relevant reports and attachments follow:
Report No. 13.3 PLANNING - Brunswick Heads Heritage Conservation Area and Heritage Material and Colours Guide 26.2022.9.1 Agenda of Ordinary (Planning) Meeting - Thursday, 12 October 2023
Report No. 13.9 PLANNING: 26.2022.9.1 - Submissions report - New heritage items for Byron Local 5 Environmental Plan 2014 Agenda of Ordinary Meeting - Thursday, 27 June 2024

Figure 2: Council Resolution 24-318
Development Related Advice (DRA) meeting
A development related advice meeting was held on 13/6/24 with the current owners and applicant to discuss the proposed dwellings design, site filling and stormwater management.
After the meeting, an email was sent by Council’s Planner on 9/7/24 to the applicant noting,
· The property is noted in Council’s 2007 Community-Based Heritage Study - Byron Shire Council (nsw.gov.au)
· Council’s Heritage assessment of the dwelling in 2021 recommended it’s future conservation.
Current thoughts are any proposal to demolish or relocate the dwelling may likely be unsupported from a heritage perspective. I recommend the owners set up a Heritage Advisory meeting with Deborah Wray to discuss their proposal prior to lodging a development application. Heritage Advisory - Byron Shire Council (nsw.gov.au).”
No Heritage Advisory meeting was undertaken prior to the lodging of the development application.
Following submission of the Development Application it was formally referred to Council’s Heritage Advisor, who does not support the proposal. The applicant was advised on the 17 March 2025 that the matter would be reported to Council with a recommendation for refusal if the application was not withdrawn. The applicant responded the following day the proposal would not be withdrawn
1.2 Description of the proposed development
As per the Statement of Environmental Effects,
“This application seeks consent for the relocation of the existing dwelling and construction of 2 x double storey dwellings on each individual Lot. The specifics for the development include:
Relocation of the existing dwelling:
The proposal involves the relocation of the existing single-storey dwelling and associated outbuildings, to prepare the site for the new development. The process will ensure the site is cleared in accordance with the relevant safety and environmental regulations. The existing dwelling will be cut in half and removed from the site so that it can be re-used on another property. Any excess materials will be sorted for recycling and disposal as appropriate.
Construction of 2 double storey Dwellings:
The proposed development involves construction of two double-storey dwellings, each dwelling will be positioned wholly within the respective lots, with a plunge pool at the rear. Both dwellings are similar in size and shape with the upper floor of the proposed dwelling on Lot 13 being slightly larger.
The proposed dwellings include open plan living areas, kitchens, laundries, single car garages and outdoor spaces on the ground floor with 3 bedrooms, 2 bathrooms on the upper floors with an extra study room on Lot 13.
The Statement of Environmental Effects, Heritage Impact Statement and Clause 4.6 Variation Request interchangeably use the words “relocation” and “demolish” to describe the proposed works to the existing dwelling. No details have been included in the application as to any proposed relocation or where this important feature of Bangalow’s Heritage would be relocated to.

Figure 3: Extract of site plan showing footprint of existing dwelling and setbacks to the boundaries
Figure 4: Proposed new dwellings site plan extract

Figure 5: Proposed new dwellings street elevation
1.3 Description of the site
7 Leslie Street, Bangalow comprises 2 individual allotments described as Lots 12 &13 within DP 6041. The existing dwelling straddles both lots which have an area of approximately 608 m2. The land is predominately cleared of mature vegetation aside from some small shrubs within the front of the site and is zoned R2 Low Density Residential.

Figure 6: Site Location
A site inspection was carried out on 19 February 2025 and 18 March 2025.

Figure 7: Existing Dwelling
|
Land is legally described |
LOT: 13 DP: 6041, LOT: 12 DP: 6041 |
|
Property address |
7 Leslie Street BANGALOW |
|
Land is zoned: |
R2 Low Density Residential |
|
Land area is: |
608m2 |
|
Constraints and Attributes:
|
· Heritage Conservation Area LEP 2014 · Drinking Water Catchment
|
2. SUMMARY OF REFERRALS
|
Referral |
Issue |
|
Development Engineer |
No objections subject to conditions of consent if approved. |
|
Building Surveyor |
No objections subject to conditions of consent if approved. |
|
S64 / Systems Planning Officer |
No objections subject to conditions of consent if approved. |
|
Heritage Consultant |
The proposed removal /relocation of the historic dwelling and proposed redevelopment is not supported as it is in direct conflict with the adopted statutory policies framework to conserve the heritage significance, fabric, setting and views of the Bangalow Heritage Conservation Area, and with the detailed policies of Byron DCP 2014 which supplement these statutory provisions. The heritage referral is attached to this report. |
Issues:
Heritage:
The proposal is not supported on the following basis:
1. The proposed removal of the dwelling is in conflict with the adopted heritage policies of the:
a) Byron LEP 2014
b) Byron DCP 2014
c) Management Recommendations of the State Heritage Inventory 1260056 for the Bangalow Conservation Area
d) Icomos Burra Charter 2013.
2. The historic dwelling demonstrates consistency with the assessed significance for the Bangalow Conservation Area.
3. The dwelling built circa 1920 is within the period of significance of 1890 to 1940 for the Bangalow Heritage Conservation Area.
4. The proposal would remove a noted contributory element of the Bangalow Heritage Conservation Area, comprising a historic single storey Federation style weatherboard building with generous side and front setbacks.
5. The proposed redevelopment lacks justification, and the Statement of Heritage Impacts report is inadequate to address the issues raised.
6. The proposal redevelopment raises particular conflict with DCP 2014 Chapter C1.6.1(3) which states that development in all areas must remain single storey. The proposed two x two storey dwellings with larger building footprints and paved areas will alter the historic and aesthetic significance of the Heritage Conservation Area.
3. SECTION 4.14 – BUSH FIRE PRONE LAND
Under section 4.14 of the Act, Council must be satisfied prior to making a determination for development on bush fire prone land, that the development complies with the document ‘Planning for Bush Fire Protection 2019’’. The site is not bush fire prone land.
4. SECTION 4.15C – MATTERS FOR CONSIDERATION – DISCUSSION OF ISSUES
Having regard to the matters for consideration detailed in Section 4.15(1) of the Environmental Planning & Assessment Act 1979 (EP&A Act), the following is a summary of the evaluation of the issues.
4.1 State Environmental Planning Policies (SEPP)
|
Considerations |
Satisfactory |
Unsatisfactory |
|
Resilience and Hazards SEPP 2021 Consideration: The proposal is satisfactory with regards to the provisions of this SEPP. |
☒ |
☐ |
|
Sustainable Buildings SEPP 2022 Consideration: The proposal is BASIX development. Valid BASIX certificates have been provided. |
☒ |
☐ |
4.2 Byron Local Environmental Plan 2014 (LEP 2014)
In accordance with LEP 2014 clauses 1.4 and 2.1 – 2.3:
(a) The proposed development is defined in the LEP 2014 Dictionary as dwelling house;
(b) The land is within the R2 Low Density Residential according to the Land Zoning Map;
(c) The proposed development is permitted with consent; and
(d) Regard is had for the Zone Objectives as follows:
|
Zone Objective |
Consideration |
|
• To provide for the housing needs of the community within a low-density residential environment. • To enable other land uses that provide facilities or services to meet the day to day needs of residents. |
The proposed development is not inconsistent with the zone objectives. |
Clause 4.3 Height of Buildings
The two dwellings comply with the 9 metre height provisions in the LEP.
Clause 4.4 Floor Space Ratio
The proposal has a floor space ratio of 0.51:1.0 which does not comply with the 0.5:1.0 provisions. The application is recommended for refusal.
Clause 4.6 Exceptions to Development Standards
The applicant has sought a variation to increase the Floor Space Ratio for one of the proposed new dwellings by 1% to a proposed FSR of 0.51:1.
The applicant has submitted a written request that strict compliance with the development standard is unreasonable or unnecessary and that there are sufficient environmental grounds to vary the controls. This is a result of a larger upper floor level on Lot 13 compared to the dwelling on Lot 12.
It is considered there are no grounds for a new dwelling in this instance to not comply with the floor space ratio provisions under Byron LEP 2014. The application is recommended for refusal.
Clause 5.10 Heritage Conservation
The proposed removal /relocation of the historic dwelling and proposed redevelopment is not supported by Council’s Heritage Consultant as it is in direct conflict with the adopted statutory policies framework to conserve the heritage significance, fabric, setting and views of the Bangalow Heritage Conservation Area.
The proposed removal of the existing dwelling is inconsistent with the objectives of clause 5.10 (1) of BLEP 2014 being:
(a) to conserve the environmental heritage of Byron Shire
(b) to conserve the heritage significance of heritage conservation areas including associated fabric, setting and views
Page 5 of the Heritage Impact Statement provided with the application stated,
“As resolved at the June Council Meeting, this site is no longer listed in the Planning Proposal to be included as an Item of Heritage Significance and can therefore be demolished”.
This is a simplistic argument and does not overcome the requirements of Clause 5.10 (2) and (4) of BLEP 2014 and ignores the significance of this 100 year old dwelling in terms of the Bangalow Heritage Conservation Area
Clause 5.10 (2) states,
“(2) Development consent is required for any of the following-
(a) demolishing or moving any of the following or altering the exterior of any of the following (including, in the case of a building, making changes to its detail, fabric, finish or appearance)-
(iii) a building, work, relic or tree within a heritage conservation area, erecting a building on land-
(iii) on which a heritage item is located or that is within a heritage conservation area.
Clause 5.10(4) states,
(4) Effect of proposed development on heritage significance The consent authority must, before granting consent under this clause in respect of a heritage item or heritage conservation area, consider the effect of the proposed development on the heritage significance of the item or area concerned. This subclause applies regardless of whether a heritage management document is prepared under subclause (5) or a heritage conservation management plan is submitted under subclause (6).
See comments below in Conclusion.
Clause 6.2 Earthworks
Earthworks are proposed to partly fill the site to create level platforms to build on the site. The earthworks proposed are generally acceptable.
Clause 6.6 Essential Services
The site can be provided with all necessary services for the two dwellings.
4.3 Any proposed Instrument that has been the subject of public consultation and has been notified to the consent authority
None applicable.
4.4 Byron Shire Development Control Plan 2014 (DCP 2014)
Chapter C1 Non Indigenous Heritage
The information on the history of the subject dwelling gained during the heritage assessment in 2021 has contributed to an increased understanding of the associative heritage significance of this dwelling and its contribution to the Bangalow Heritage Conservation Area.
The Bangalow Heritage Conservation Area as a precinct, is held in high regard and has social significance to the community, which values the sense of place, its historical and social connections and the aesthetic values of the precinct. 7 Leslie Street demonstrates consistency with these assessed values.
The Heritage Impact Statement provided with the application has not been prepared in accordance with the Heritage NSW Guidelines for Preparation of Statements of Heritage Impact 2023. It is not robust, lacks any exploration of the history and significance of the dwelling and its assessment of the potential impact of the proposal against the assessed heritage significance and setting of the Bangalow Heritage Conservation Area.
The proposed development does not demonstrate compliance with is inconsistent with the DCP 2014 Chapter C1 Non Indigenous Heritage.
Chapter E2 Bangalow
The proposed development is inconsistent with the objectives and performance criteria of Section E2.4 Development within the Bangalow Heritage Conservation Area, Chapter E2 of Byron Development Control Plan 2014. The proposed development does not reinforce the existing low rise historical village feel of Bangalow.
Chapter B4 Traffic Planning, Vehicle Parking, Circulation and Access
Both dwellings have capacity for the parking of two vehicles onsite in a stacked arrangement. In the event that the heritage matters were overcome, then such parking arrangements would be supportable for two small narrow lots.
Chapter D1 Residential Accommodation in Urban Village and Special Purpose Zones
D1.2.1 Building Height Plane
Both dwellings encroach into the Building Height Plane. On small lots such as these some encroachment is usually unavoidable. However no real attempt is made to bring in the upper levels as required by the controls s per the performance criteria 1 as follows:
Developments must be set back progressively from the site boundaries as height increases….
This is considered as a further reason for refusal.
D1.3.2 – Landscaping – at least 25% of the site must be deep soil areas.
This equates to 76 m2 per lot. Based on the submitted plans, the deep soil areas are just over the 25% requirement, but the ability of the side setback areas down the southern boundaries is questionable. Should the application be approved, conditions would be imposed to require extra deep soil areas in the rear or front yards.
4.5 Environmental Planning and Assessment Regulation 2021 considerations
|
Environmental Planning and Assessment Regulations 2021 |
Applicable to the proposal: |
Considered the control as it relates to the proposal: |
If this control is applicable, does the proposal comply? |
|
Section 61 - Additional matters that consent authority must consider |
☒ Yes ☐ No |
☒ Yes ☐ No ☐ NA |
☒ Yes ☐ No ☐ NA |
|
Section 62 - Consideration of fire safety |
☐ Yes ☒ No |
☐ Yes ☐ No ☒ NA |
☐ Yes ☐ No ☐ NA |
|
Section 64 - Consent authority may require upgrade of buildings |
☐ Yes ☒ No |
☐ Yes ☐ No ☒ NA |
☐ Yes ☐ No ☒ NA |
|
Section 63 - Considerations for erection of temporary structures |
☐ Yes ☒ No |
☐ Yes ☐ No ☒ NA |
☐ Yes ☐ No ☒ NA |
Non-compliances and any other significant issues discussed below
4.6 The likely impacts of that development, including environmental impacts on both the natural and built environments, and social and economic impacts in the locality
4.6.1
|
Impact on: |
Likely significant impact/s? |
|
Natural environment |
The proposal will not have a significantly adverse impact on the natural environment of the locality. |
|
Built environment |
The proposed removal of the dwelling will have a significant adverse impact on the built environment of the Heritage Conservation Area. |
|
Social Environment |
The proposal will have an adverse impact on the social fabric of the locality with the removal of a dwelling that is approximately 100 years old. |
|
Economic impact |
The proposal will not have a significant economic impact on the locality. |
|
Construction Impacts |
The development will generate minor impacts during its construction. If recommended for approval, conditions of consent applied to control hours of work, builders waste, construction noise, installation of sedimentation and erosion control measures and the like to ameliorate such impacts. |
4.6.3 Council Policies applicable to the proposed development?
|
Council Policy |
Consideration |
|
No objections have been raised by Council’s ET Engineer in this regard. |
|
|
Council’s Local Approval’s Officer will assess the application in accordance with the policy. |
4.7 The suitability of the site for the development
It has not been demonstrated that is site is suitable for the proposed development which requires the removal of an existing dwelling which is of significance to the Bangalow Heritage Conservation Area for the reasons outlined in this report. The application is recommended for refusal. See comments below in Conclusion.
4.8 Submissions made in accordance with this Act or the regulations
The development application was publicly exhibited. The redacted Public Submissions are contained in Attachment 1 of this Report. There were 30 submissions of objection made on the development application with issues raised summarised as follows:
1. Impacts on the Bangalow Heritage Conservation Area from the removal of the dwelling
2. Overdevelopment of the site
3. Lack of parking
4. Lack of landscaping
5. Proposed new 2 storey dwellings not in character with the Heritage Conservation Area
6. Privacy and noise concerns
7. Undesirable precedent
4.9 Public interest
The proposed development would remove a noted contributory element of the Bangalow Heritage Conservation Area and is likely to prejudice or compromise the public interest and create an undesirable precedent. See comments below in Conclusion.
5. DEVELOPER CONTRIBUTIONS
5.1 Water & Sewer Levies
Section 64 levies would be payable if the proposal is recommended for approval.
5.2 Developer Contributions
Section 7.11 Contributions will be payable if the proposal is recommended for approval.
6. DISCLOSURE OF POLITICAL DONATIONS AND GIFTS
|
Disclosure details |
Response |
|
Has a Disclosure Statement been received in relation to this application? If Yes, Provide Disclosure Statement register reference: 91. |
Yes ☐ No ☒ |
|
Have staff received a ‘gift’ from anyone involved in this application that needs to be disclosed. |
Yes ☐ No ☒ |
7. CONCLUSION
The proposed development is not supported having regard to the relevant environmental planning instruments and planning controls applicable to the site. The proposed removal of the existing dwelling raises significant issues in terms of heritage impacts to the Bangalow Heritage Conservation Area. The site is considered unsuitable for the proposed development and will have an adverse impact upon the built environment and the social fabric of the Bangalow Heritage Conservation Area.
There is significant objection to the proposed development.
The application is recommended for refusal.
Further, it is recommended that Council proceed with a LEP amendment to include the property 7 Leslie Street Bangalow in Schedule 5 of LEP 2014, as per Resolution 24-381 (4) and listing details in Attachment 4.
Links to relevant reports and attachments follow:
Report No. 13.3 PLANNING - Brunswick Heads Heritage Conservation Area and Heritage Material and Colours Guide 26.2022.9.1 Agenda of Ordinary (Planning) Meeting - Thursday, 12 October 2023
Report No. 13.9 PLANNING: 26.2022.9.1 - Submissions report - New heritage items for Byron Local 5 Environmental Plan 2014 Agenda of Ordinary Meeting - Thursday, 27 June 2024
Staff Reports - Sustainable Environment and Economy 13.3
Report No. 13.3 Business, Industry and Visitor Economy (BIVE) Strategy - Post Exhibition Report
Directorate: Sustainable Environment and Economy
Report Author: Arika McElroy, Business and Industry Project Lead
File No: I2025/188
Summary:
This report should be read before and alongside the Events Strategy - Post Exhibition Report.
The draft Business Industry and Visitor Economy (BIVE) Strategy was developed to bring all the business and industry sectors together – continuing and replacing the Enterprising Byron Economic Development Strategy and the draft Sustainable Visitation Strategy. This was in response to COVID-19, fire, floods and a rapidly changing economy.
The draft BIVE Strategy’s goal was for a resilient and diverse economy providing for our community and environment in a balanced and sustainable manner. It aimed to do so by identifying Council’s role in terms of business, industry and the visitor economy.
Council endorsed (Res 24-424) the public exhibition of the draft BIVE Strategy at the 15 August 2025 Council Meeting. It was exhibited alongside the draft Events Strategy, over 6 weeks from 25 September to 5 November 2024. The exhibition had extensive reach via Council promotion, resulting in 17 written submissions. The most common feedback was on the following themes.
· Visitor economy - Requests for further recognition of the size, role and importance was consistent across most submissions.
· Activity level detail – Submission suggestions will be considered when finalising the strategy and during detailed project planning per action.
· Vision - The opportunity for aspiration and vision was not fully captured.
· Resourcing - Further information on resourcing is required.
· Data - Data needs to be reviewed for clarity, currency and consistency.
· Context - The context requires further detail to outline alignment and collaboration with other plans of Council.
A lot of the feedback suggests that the community viewed the draft BIVE Strategy as missing key elements that a comprehensive economic development strategy would have.
The Vibrant Economy Strategy will use the work done to date and the feedback we’ve received to replace the draft BIVE Strategy. It will serve as an overarching Economic Development Strategy for Byron Shire.
This Strategy will provide a clear and comprehensive vision for a vibrant economic future in Byron Shire. Key elements for achieving this include:
· An academic partnership to develop a leading, impactful, and measurable roadmap, guided by the extensive community engagement already undertaken and available resources.
· Clarification of the gap the strategy will address its alignment with other Council plans and initiatives.
· A clearer economic development strategy hierarchy, including specific industry sub action plans that focus on visitor economy, business and industry, events and the night-time economy.
· A data review and update that reflects contextual changes since the project’s initiation, including an outline of the methodology used for improved readability.
The Vibrant Economy Strategy will be supported by multiple sub-plans to provide for specific industry and sector needs.

RECOMMENDATION:
That Council:
1. Acknowledges the lengthy process to reach this project stage.
2. Thanks individuals, organisations and agencies who provided a written submission during the exhibition of the draft BIVE Strategy and to those who gave their time throughout its development.
3. Recognises the need to adjust our approach to supporting and advocating for economic vibrancy and supports transitioning the BIVE Strategy into a Vibrant Economy Strategy serving as an overarching economic development strategy for Byron Shire.
4. Notes the Vibrant Economy Strategy will be supported by multiple sub–plans including the Events Action Plan (refer to the separate report on this agenda).
5. Supports the finalisation of the Vibrant Economy Strategy as outlined in this report.
6. Receives a report on the final Vibrant Economy Strategy.
1 Draft
BIVE Strategy Exhibition Overview, E2025/24697
![]()
2 Draft
Business Industry and Visitor Economy Strategy to 2035 - Combined Submissions -
Redacted, E2025/29610 ![]()
Report
This report should be read before and alongside the Events Strategy - Post Exhibition Report.
These two projects started at the same time with the goal of working together for integrated and strategic economic development initiative. Although each project went through different stages and adjustments, their next steps are now aligned to ensure better consistency and clarity in Council’s economic development strategy approach.
The public exhibition of the draft Business, Industry and Visitor Economy (BIVE) Strategy was endorsed (Res 24-424) at the 15 August 2025 Council Meeting. The draft Strategy was exhibited over 6 weeks alongside the draft Events Strategy, reaching around 9,000 and resulting in 17 written submissions.
This report reviews the submissions received, along with updates on context and resources, and recommends expanding the scope to a more comprehensive economic development strategy, with implementation through multiple sub-action plans.
The report also provides an overview of the draft BIVE Strategy, the exhibition process, the submissions to be considered during finalisation, and the suggested next steps.
Draft Strategy
The draft BIVE Strategy was developed to bring all the sectors together – continuing and replacing the Enterprising Byron Economic Development Strategy and the draft Sustainable Visitation Strategy. This was in response to COVID-19, fire, floods and a rapidly changing economy.

To do so, Lucid Economics was engaged in partnership with Tilma Group, to progress through several project stages. A summary of the of these stages is indicated in the following diagram.

The exhibited draft Strategy’s goal was for a resilient and diverse economy providing for our community and environment in a balanced and sustainable manner. It did so by identifying Council’s role in terms of business, industry and the visitor economy.
Three key themes emerged to guide prioritised action in a single implementation plan:
· Foster Business Engagement
· Celebrate Our Business and Brand Identity
· Plan for a Sustainable Economy
Exhibition
The exhibition had a reach of around 9,000 through Council promotion via Council’s website, social media, multiple Council E News, advertisement in the Byron Shire Echo, and direct email to stakeholders involved throughout the development of draft Strategy.
Further detail on the digital reach of Council promotion during the public exhibition is available in the exhibition overview as Attachment 1.
Feedback
· The Cellar Byron Bay
· Destination North Coast
· Beach Suites Byron Bay Pty Ltd
· Crystalbrook Byron
· Millett Group Byron Bay
· Beachfood P/L
· North Byron Business Chamber
· Destination Byron
· byronbay.com
· Byron Bay Chamber of Commerce
· Vision Walks - Eco Tours
· Byron Shire Council - Access Consultative Working Group
· GTI Tourism Pty Ltd
The most common feedback raised across most submissions was for further recognition of the Visitor economy.
This was followed by multiple other key themes:
· Activity level detail – Submission suggestions will be considered during detailed project planning per action.
· Vision - The opportunity for aspiration and vision was not fully captured.
· Resourcing - Further information on resourcing is required.
· Data - Data needs to be reviewed for clarity, currency and consistency.
· Context - The context requires further detail to outline alignment and collaboration with other plans of Council.
Further detail is included in the attached Exhibition Overview (Attachment 1) including summarised comments per theme with staff responses.
Next steps
A lot of the feedback suggests that the community viewed the draft BIVE Strategy as missing key elements that a comprehensive economic development strategy would have.
As a result of a review of submissions and feedback from the business community, along with the need to respond to our changing economic climate, we have identified the need to adjust our approach to supporting and advocating for business and industry. This has led to the need to transition the BIVE Strategy to a Vibrant Economy Strategy.
The Vibrant Economy Strategy will use the work done to date and the feedback we’ve received to replace the draft BIVE Strategy and will serve as an overarching Economic Development Strategy for Byron Shire.
This Vibrant Economy Strategy will provide a clear and comprehensive vision for a vibrant economic future in Byron Shire. Key elements for achieving this include:
· An academic partnership to develop a leading, impactful, and measurable roadmap, guided by extensive community engagement already undertaken and available resources.
· Clarification of the gap the strategy will address and its alignment with other Council plans and initiatives.
· A clearer economic development strategy hierarchy, including sub action plans that focus on destination management, business and industry support, and actions related to the events sector and the night-time economy.
· A data review and update that reflects contextual changes since the project’s initiation, including an outline of the methodology used for improved readability.
The Vibrant Economy Strategy will be supported by multiple sub-plans to provide for specific industry needs. Additional sub action plans may be included in future. The recommended revised structure is:

Further Council support to Business and Industry
Related new and emerging economic development initiatives and activities to support the Vibrant Economy Strategy and sub action plans include:
· Changes to Council’s Economic Development and Events teams to deliver improved levels of service, sector advocacy and business support.
· Successful expression of interest to co-host the 2025 North Coast Tourism Symposium and Awards with Destination North Coast NSW.
· Project scoping and grant submission to implement a Special Entertainment Precinct in Byron Bay.
· Support for Music NSW Regional and Remote Summit in Byron.
· Strengthening internal relationships to foster a unified, whole-of-Council approach to economic development, while also building strategic external partnerships with organisations such as Screen NSW, Screenworks, Music NSW, Arts Northern Rivers, Economic Development Australia, the Green Venue Program in collaboration with Sound NSW, the Department of Primary Industries and Regional Development, Chambers of Commerce, Business NSW, Destination Byron, Destination North Coast NSW, Destination NSW, and the film, events, and business teams of neighbouring Northern Rivers and North Coast NSW
· Submission on the review of the Local Government Filming Protocol and advocacy for Byron specific considerations in it
· Post Cyclone Alfred Recovery actions including participation on the Subcommittee for Business, Industry and Tourism.
· Attendance at the Green Music Australia launch program to boost sustainability of live music venues.
· Active participation in a range of recent roadshows, breakfasts and forums.
Strategic Considerations
Community Strategic Plan and Operational Plan
|
CSP Objective |
CSP Strategy |
DP Action |
Code |
OP Activity |
|
4: Ethical Growth |
4.3: Promote and support the local economy |
4.3.1: Diverse economy - Develop a Business and Visitor Economy Strategy to support a resilient and diverse economy |
4.3.1.1 |
Develop a Business, Industry and Visitor Economy Strategy |
Recent Resolutions
· Res 21-199 – Endorsement of the BIVE Strategy framework
· Res 24-424 - Draft BIVE Strategy for public exhibition
Legal/Statutory/Policy Considerations
The following documents were considered in the development of the draft BIVE Strategy:
State and Regional
· Visitor Economy Strategy
· Northern Rivers Regional Economic Development Strategy
· North Coast Destination Management Plan
· North Coast Regional Plan
· State Environmental Planning Policy
· Environmental Planning and Assessment Act
Byron Shire
· Community Strategic Plan 2023
· Enterprising Byron 2025
· Draft Sustainable Visitation Strategy 2020-2030
· Tourism Resilience Discussion Paper 2020
· Arts and Culture Action Plan
· Towards Zero Integrated Waste Strategy
· Climate Change Adaptation Plan
· Disability Inclusion Action Plan
· Byron Local Environmental Plan
· Residential Strategy
· Business and Industrial Lands Strategy
· Rural Land Use Strategy
· Local Planning Strategy
· Masterplans
Financial Considerations
The development of the draft BIVE Strategy was funded through the AGRN1012-Local Government Recovery Grants-Highly Impacted Councils-Storm and Flood Events- March 2022.
Funds to finalise the Vibrant Economy Strategy are available in the existing budget.
Staff Reports - Sustainable Environment and Economy 13.4
Report No. 13.4 Events Strategy - Post Exhibition Report
Directorate: Sustainable Environment and Economy
Report Author: Arika McElroy, Business and Industry Project Lead
File No: I2025/60
Summary:
This report should be read following and alongside the Business Industry and Visitor Economy Strategy - Post Exhibition Report.
The draft Events Strategy aims to strategically support small to medium size events by:
· outlining the types of events that will achieve the best economic, social and environmental outcomes for Byron Shire now and in the future
· identifying the resources and initiatives needed to ensure event success
· providing Council with a strategic framework to guide decision making on event support that maximises economic and social outcomes, optimises Council resources and increases the sustainability of local events.
Council endorsed (Res 24-425) the public exhibition of the draft Events Strategy at the 15 August 2025 Council Meeting. It was exhibited over 6 weeks from 25 September to 5 November 2024. The exhibition reached over 8,000 via social media, Council’s website and more via Byron Shire Echo advertisements, culminating in 21 written submissions.
Comments on the below key themes were most common, with further details in the extended Exhibition Overview in Attachment 1.
· Positive support for the strategy, particularly on the thorough research and development, improvement in the events sector with its implementation, focus on homegrown events and a triple bottom line approach.
· Specific suggestions which will be considered when finalising the actions and during their detailed project planning.
· Accessibility and inclusion the need to broaden inclusivity, diversity and equity. Positive support was received on various proposed elements and actions.
· Event size definitions should be reconsidered with a focus on reducing the range and encouraging smaller events and festivals.
· Infrastructure concerns were raised in relation to transport to and from events, parking challenges and local infrastructure strained by festivals and events.
The Events Action Plan will retain the strengths of the draft Events Strategy, incorporate minor amendments based on the submissions, and account for the contextual updates that have occurred since the draft strategy was developed, including the state governments Vibrancy Reforms.
The proposed Events Action Plan will be integrated as a sub-plan within the new Vibrant Economy Strategy, which will replace the draft Business, Industry, and Visitor Economy (BIVE) Strategy (refer to the separate report on this agenda). The Vibrant Economy Strategy will serve as the overarching Economic Development Strategy for Byron Shire.
RECOMMENDATION:
That Council:
1. Acknowledges the lengthy process to reach this project stage.
2. Thanks individuals, organisations and agencies who provided a written submission during the exhibition of the draft Events Strategy and to those who gave their time throughout its development.
3. Recognises the need to adjust our approach to supporting and advocating for events and supports transitioning the draft Events Strategy into an Events Action Plan.
4. Notes the Events Action Plan will be integrated as a sub-plan within the new Vibrant Economy Strategy, which will replace the draft Business, Industry, and Visitor Economy (BIVE) Strategy (refer to the separate report on this agenda).
5. Supports the finalisation of the Events Action Plan as outlined in the report.
6. Receives a report on the final Events Action Plan.
1 Draft
Events Strategy Exhibition Overview, E2025/23497
![]()
2 Draft
Events Strategy to 2035 - combined submissions merge - Redacted, E2025/29609 ![]()
3 Confidential - Draft Events Strategy to 2035 - combined submissions merge - Confidential, E2024/134565
Report
This report should be read following and alongside the Business Industry and Visitor Economy Strategy - Post Exhibition Report. These two projects commenced concurrently with the aim of ensuring synergy across both. Whilst various stages in each project where extended and customised, the two strategies have now reconnected to ensure consistency and clarity across the final suite of economic development documents.
The public exhibition of the draft Events Strategy was endorsed (Res 24-425) at the 15 August 2025 Council Meeting. The draft Events Strategy was exhibited over 6 weeks from 25 September to 5 November 2024, reaching over 8,000 and culminating in 21 written submissions.
An overview follows on the draft Events Strategy, the exhibition, feedback and next steps.
The draft Events Strategy aims to strategically support small to medium size events by:
· outlining the types of events that will achieve the best economic, social and environmental outcomes for Byron Shire now and in the future
· identifying the resources and initiatives needed to ensure event success
· providing Council with a strategic framework to guide decision making on event support that maximises economic and social outcomes, optimises Council resources and increases the sustainability of local events.
To do so, a draft Events Strategy was prepared by engaging consultants from Tilma Group to progress through several stages:

The draft Events Strategy outlined the key priorities for Council in enabling and supporting small to medium events to flourish and the local community and environment to benefit in tandem. These are:
1. Identify and nurture events that align with our values
2. Enable socially, environmentally, and economically sustainable events
3. Ensure infrastructure facilitates event growth and development
4. Establish Byron Shire as an event friendly destination for the small and medium events
5. Enhance events’ contribution to community wellbeing, the local environment and economy
The exhibited draft Strategy included a range of actions to deliver on each of these key priorities, as Part C Activation Plan on page 40.
Exhibition
The 6-week exhibition reached over 8,000 people via social media, had 512 interactions on Council’s Your Say webpage and many more via advertisements in the Byron Shire Echo, multiple Council E News (Community, Business and Events) separately, along with direct email notification to all engaged stakeholders throughout the development of the draft strategy.
Further detail is available in Attachment 1, on the digital reach and interactions with Council promotion of the public exhibition.
Feedback
· Destination North Coast
· Byron Bay Surf Festival
· Bangalow Lions Club
· Bangalow Showground
· Japan Festival Byron Bay
· Access Consultative Working Group
· Marvell Hall
· Brunswick Valley Historical Society Inc
· Marvell Lane Pty Ltd
· Creative Mullumbimby
· Byron Bay International Film Festival
· Mullumbimby Chamber of Commerce
· Kaleido Mullumbimby
· South Golden Beach Community Association
· Brunswick Heads Progress Association
· Bangalow Community Association
· Conservation of North Ocean Shores
Overall, there was positive support for the strategy, particularly on the thorough research and development, improvements for the events sector with its implementation, the focus on homegrown events and its triple bottom line approach. This was followed by:
· Specific suggestions, which will be considered when finalising the actions and during their detailed project planning.
· Accessibility and inclusion, the need to broaden inclusivity, diversity and equity. Positive support was received on various proposed elements and actions.
· Event size definitions should be reconsidered with requests to focus on reducing the range and encouraging smaller events and festivals.
· Infrastructure concerns were raised in relation to transport to and from events, parking challenges and local infrastructure strained by festivals and events.
Further detail including summarised comments by theme and staff responses is included in the Exhibition Overview (Attachment 1) also accompanied by redacted submissions (Attachment 2).
Next steps
Following a review of the submissions and recognising the need to adjust our approach to supporting and advocating for events, this report recommends transitioning from a draft Events Strategy to an Events Action Plan.
The Events Action Plan will preserve the strengths of the draft Events Strategy, incorporate minor amendments based on the submissions, and account for the contextual updates that have occurred since the draft strategy was developed, including the state governments Vibrancy Reforms.
The Events Action Plan will be integrated as a sub-plan under the new Vibrant Economy Strategy. This Strategy will replace the draft Business, Industry, and Visitor Economy (BIVE) Strategy (refer to the separate report on this agenda). The Vibrant Economy Strategy will serve as the overarching Economic Development Strategy for Byron Shire and additional sub action plans may be included in future:

The report recommends that Council support staff finalisation as an Events Action Plan.
Strategic Considerations
Community Strategic Plan and Operational Plan
The draft Events Strategy fulfills actions in Council’s Arts and Cultural Action Plan, the Community Strategic Plan 2032 and it aligns with the Business Industry, and Visitor Economy Strategy being developed concurrently.
|
CSP Objective |
CSP Strategy |
DP Action |
Code |
OP Activity |
|
2: Inclusive Community |
2.1: Foster opportunities to express, celebrate and participate in arts and cultural activity |
2.1.3: Events and festivals - Support and enable arts & cultural activity, festivals, projects, and events |
2.1.3.10 |
Develop an Events Strategy |
Recent Resolutions
· Res 22-288 - Notice of Motion No. 9.2 Strengthening our Festival Culture
· Res 24-425 - Draft Events Strategy for public exhibition
Legal/Statutory/Policy Considerations
The following documents were considered in the development of the draft Events Strategy.
State
· NSW Visitor Economy Industry Action Plan 2030
· State policy and legislation initiatives such as ‘Bringing fun back to NSW’
Regional
· North Coast NSW Destination Management Plan 2022-2030
· Northern Rivers Regional Economic Development Strategy 2018 -2022
Byron Shire
· Community Strategic Plan 2023
· Disability and Inclusion Action Plan
· Arts and Culture Action Plan
· Single Use Plastic Policy
· Draft Business Industry and Visitor Economy Strategy
· Event Guide 2020
· Draft Sustainable Visitation Strategy 2020-2030
· Tourism Resilience Discussion Paper 2020
· Byron Shire Development Control Plans and Plans of Management
· Byron Shire Open Space and Recreation Needs Assessment and Action Plan 2017-2036
Further contextual updates are to be considered during finalisation.
Financial Considerations
The development of the draft Events Strategy was funded through the AGRN1012 - Local Government Recovery Grants - Highly Impacted Councils - Storm and Flood Events - March 2022.
The finalisation of the Events Action Plan is funded from existing budget.
Staff Reports - Sustainable Environment and Economy 13.5
Report No. 13.5 PLANNING - Report of the Planning Review Committee held 11 March 2025
Directorate: Sustainable Environment and Economy
Report Author: Chris Larkin, Manager Sustainable Development
Noreen Scott, EA Sustainable Environment and Economy
File No: I2025/309
Summary:
This report provides the outcome of the Planning Review Committee (PRC) held on 11 March 2025.
NOTE TO COUNCILLORS:
In accordance with the provisions of S375A of the Local Government Act 1993, a Division is to be called whenever a motion for a planning decision is put to the meeting, for the purpose of recording voting on planning matters. Pursuant to clause 2(a) under the heading Matters to be Included in Minutes of Council Meetings of Council's adopted Code of Meeting Practice (as amended) a Division will be deemed to have been called by the mover and seconder of all motions relating to this report.
RECOMMENDATION:
That Council endorses the outcomes of the Planning Review Committee meeting held on 11 March 2025.
Report
The PRC meeting was held on 11 March 2025. The meeting commenced at 4:00pm and concluded at 4:15pm.
Councillors: Cr J Dods, Cr D Kay, Cr M Lowe, Cr J Swain, Cr D Warth.
Apologies: Cr Ndiaye, Cr M Lyon, Cr A Pugh, Cr Hauge.
Staff: Shannon Burt (Director Sustainable Environment and Economy), Chris Larkin (Manager Sustainable Development).
Conflict of Interest: Nil
Council determined the following original development applications. The S4.55 application/s to modify these development consents are referred to the Planning Review Committee to decide if the modification applications can be determined under delegated authority.
|
DA No. / Applicant |
Property Address / Proposal |
Consultation / Submissions |
Reason/s / Outcome |
|
10.2023.286.2 Ms A Borrello |
1/42 Macgregor Street Alterations and Additions to an Existing Dwelling House |
Level 0 |
Staff Delegation |
|
10.2023.194.2 Town Planning Studio |
150 Tandys Lane Modifications to the form and layout of the southern dwelling, swimming pool and landscaping of the approved Demolition of an existing dwelling, (part of dual occupancy (detached) associated swimming pool and outbuildings and proposed new dwelling (part of dual occupancy (detached), swimming pool, earthworks and landscaping. |
Level 2 12/2/25 to 25/2/25 No submissions |
Staff Delegation |
|
LATE ITEM 10.2008.565.7 Mr L Wilkinson |
13 Gaggin Street Modification to condition 1 and condition 8 and Use of Alterations and Additions to Approved Alterations and/or additions to an existing double storey dwelling |
Level 2 15/01/25 to 29/01/25 2 submissions |
Staff Delegation
|
Staff Reports - Sustainable Environment and Economy 13.6
Report No. 13.6 Status report on Development Applications (DAs) with bodies like the Northern Regional Planning Panel (NRPP)
Directorate: Sustainable Environment and Economy
Report Author: Shannon Burt, Director Sustainable Environment and Economy
File No: I2025/311
Summary:
At the Council (Planning) Meeting of 12 October 2023 it was resolved as part of 23-461
that Council: “Receives status reports monthly to each Ordinary (Planning) Meeting on all
DA’s that are being processed by Council for determination by other bodies such as the
Northern Regional Planning Panel or the Independent Planning Commission.”
Resolution 22-559 further requires: “That Councillors receive, as a standard procedure, a copy of the Assessment Report prepared by Council staff for any DA that is to be determined by the Northern Regional Planning Panel on the next working day after it is lodged on the Planning Portal.”
RECOMMENDATION:
That Council notes the status report on Development Applications (DAs) with bodies like the Northern Regional Planning Panel (NRPP).
Report
The following applications are a matter for determination by the Northern Regional Planning Panel in accordance with the Sydney District & Regional Planning Panels Operational Procedures. There are no matters currently with the Independent Planning Commission.
|
Planning Authority |
Application Description and link |
Status |
|
Northern Regional Planning Panel |
PPSNTH-285 Community Title Subdivision 53 McAuleys Lane Myocum 2481 Community Title Subdivision | Planning Portal - Department of Planning and Environment (nsw.gov.au) Link to DA tracker for DA 2023.454.1 information and documents here: |
Submitted 12/12/2023 Record of Briefing - PPSNTH-285.pdf Determination meeting date to be confirmed.
|
|
Northern Regional Planning Panel |
PPSNTH-405 Review of Determination (Refusal) - Temporary extension to existing coastal protection works 144 Bayshore Drive Byron Bay 2481 Link to DA tracker for DA 2023.287.2 information and documents here: |
Submitted 13/01/25 Review of determination (refusal) comprising the temporary extension of an existing geobag wall on private property. The Development Application was refused on 26 September, 2024 by the Northern Regional Planning Panel. Determination meeting scheduled for 24 March 2025. Two appeals by Ganra Pty Ltd against the refusal of DA 10.2023.2.87.1 and the deemed refusal of the review application for the DA lodged. Court directions are on 14 April 2025. |
|
Northern Regional Planning Panel |
PPSNTH-406 Modification to Condition 1 of the Consent to establish Stage 4 Public Open Space during Stage 3. 26 Harvest Boulevard Byron Bay & 342 Ewingsdale Road Byron Bay & Ewingsdale Road West Byron | Planning Portal - Department of Planning and Environment Link to DA tracker DA 10.2017.201.4 information and documents here: |
Submitted: 16/12/25 Under assessment.
|
Strategic Considerations
Community Strategic Plan and Operational Plan
|
CSP Objective |
CSP Strategy |
DP Action |
|
1: Effective Leadership |
1.1: Enhance trust and accountability through open and transparent leadership |
1.1.2: Governance - Ensure legislative compliance and support Councillors to carry out their civic duties |
Recent Resolutions
· 23-461
Legal/Statutory/Policy Considerations
The Planning Panels determine regionally significant development applications (DAs), certain other DAs and s4.55(2) and s4.56 modification applications including:
· Regionally significant development, as outlined in Schedule 6 of the State Environmental Planning Policy Planning Systems 2021
· Regionally significant development relating to Aboriginal land, as outlined in Chapter 3 of the State Environmental Planning Policy Planning Systems 2021
· Development with a capital investment value (CIV)* over $30 million.
· Development with a CIV* over $5 million which is:
o Council related
o lodged by or on behalf of the Crown (State of NSW)
o private infrastructure and community facilities
o eco-tourist facilities
o extractive industries, waste facilities and marinas that are designated development
o certain coastal subdivisions and
o certain coastal protection works.
*Capital investment value (CIV) is calculated at the time of lodgement of the DA for the purpose of determining whether an application should go to a Planning Panel - refer to Planning Circular PS 10-008.
Section 10 of the Sydney District & Regional Planning Panels Operational Procedures talks to Roles of councils and other panels.
10.1 states the elected Council and Council staff have different roles in the assessment of DAs. Under the Local Government Act 1993, the independence of Council staff is protected in the preparation of advice and recommendations. Staff members are not subject to direction by the Council or by a Councillor as to the content of any advice or recommendation made by the staff member. Equally, a Council or Councillor is not bound by the advice or recommendation made by a member of staff.
10.3 states historically, one of the roles of an elected Council has been to determine or make decisions on DAs in their capacity as a consent authority. There are occasions, however, where the determination role is performed by other people or bodies, either because the Council has delegated that function, or because it has been conferred upon another person or body. For example, where local planning panels have been introduced, elected Councils no longer determine DAs (see section 2.17 of the EP&A Act). The Panel for the area in which the development is to be carried out is the consent authority for regionally significant development (see section 4.5 of the EP&A Act).
10.4 states Council staff are responsible for post-determination functions including:
· notifying Panel determinations on DAs (see sections 4.7(2)(e), 4.18 and 4.59 of the EP&A Act),
· registering Panel development consents on the NSW Planning Portal (see sections 4.7(2)(e) and 4.20 of the EP&A Act), and
· monitoring and enforcing compliance with conditions of the development consent.
The notice of determination should be issued once Council receives a copy of the endorsed and final determination from the Panel. The notice of determination must include all conditions imposed by the Panel, including any additional or amended conditions.
The Council has no power to amend conditions or include additional conditions following the Panel’s determination.
Council will advise any person who made a submission on the DA of the determination.
The Council continues to be responsible for the monitoring of, and enforcing compliance with, any conditions of the development consent.
Where an application has been approved subject to a ‘deferred commencement’ condition Council is responsible for determining whether the requirements of the condition have been met (see section 4.16(3) of the EP&A Act). Council advises the chair of the Panel in writing when the matter specified in the condition has been satisfied (see section 277(2) of the EP&A Regulation)
Microsoft Word - Att C - Amended RPP Operational Procedures.docx (amazonaws.com)
11.13 talks to Council representation to the Planning Panel.
An elected Council may make a submission on a DA within their LGA that is to be determined by a Panel up to seven days before the Panel meeting. After the assessment report is sent to the Secretariat, it may be given to the elected Council to assist in its decision as to whether it will be making a submission to the Panel. The elected Council’s submission should not be prepared by persons involved in the assessment of the application but could be prepared by another Council officer, or a consultant.
A Council submission should not be specifically referenced in the assessment report or recommendations prepared by the Council staff. If Council makes a submission, a staff representative or individual Councillors may register to address the Panel at the meeting to express the views of Council. Councillors who are also Panel members have an independent role because they have been nominated by their Council as its nominee to the Panel.
A Code of Conduct also applies to members of the Planning Panels.
Appeals from Planning Panel determinations
Section 8.15(4) of the EPA Act was introduced on 1 March 2018. It provides relevantly:
If the determination or decision appealed against under this Division was made by a Sydney district or regional planning panel or a local planning panel, the Council for the area concerned is to be the respondent to the appeal but is subject to the control and direction of the panel in connection with the conduct of the appeal. The Council is to give notice of the appeal to the panel.
In respect of the conduct and potential resolution of appeals, Councils are subject to the direction and control of planning panels in respect of decisions they make after 1 March 2018.
The Land and Environment Court has said that in circumstances where the panel and Council have conflicting views on a development, the appropriate approach would be for the panel to apply to be joined as a party to the appeal proceedings.
Financial Considerations
None relevant to this report.
Consultation and Engagement
Applications are exhibited as per the Council’s Community Participation Plan.
Otherwise, consultation, engagement and reporting must be in accordance with the Planning Panels Operations Procedure and Code of Conduct.
Staff Reports - Sustainable Environment and Economy 13.7
Report No. 13.7 PLANNING - DA 10.2024.490.1 - Dual Occupancy (Detached) Comprising an Existing Dwelling, a New Dwelling, a Carport / Workshop and Removal of 6 Trees - 7 Tinderbox Road, Talofa
Directorate: Sustainable Environment and Economy
Report Author: Greg Smith, Team Leader Planning Services
File No: I2025/368
Proposal:
|
DA No: |
10.2024.490.1 |
||||
|
Planning Portal ref |
PAN-497048 |
||||
|
Proposal description: |
Dual Occupancy (Detached) Comprising an Existing Dwelling, a New Dwelling, a Carport / Workshop and Removal of 6 Trees |
||||
|
Property description: |
LOT: 3 DP: 575719 |
||||
|
7 Tinderbox Road TALOFA |
|||||
|
Parcel No/s: |
94110 |
||||
|
Applicant: |
Mr L Houghton |
||||
|
Owner: |
Mr J A & Mrs R L Wallen |
||||
|
Zoning: |
RU2 Rural Landscape |
||||
|
Date received: |
6 January 2025 |
||||
|
Public notification or exhibition: |
- Level 2 advertising under Council’s Community Participation Plan. - Exhibition period: 17/1/2025 To 31/1/2025 - No Submissions were received |
||||
|
Concurrent approvals included with DA |
On-Site Sewage Management System (Section 68) |
||||
|
Concurrent approvals included with DA |
☐ N/A |
☐ W&S (68) |
☒OSMS (68) |
☐ ST (68) |
☐ RA (138) |
|
Other: |
|
||||
|
Variation request to Development Standards under an EPI (eg clause 4.6) |
Clause 4.6 Name of clause – Erection of dual occupancies (detached) and secondary dwellings in Zones RU1 and RU2 (Second driveway) Clause number – 4.2D Percentage value of variation sought – 100% Percentage value of the variation approved – 100% Brief justification for the variation – The variation is reasonable and orderly with consideration for the proposed driveway. It is unnecessary to comply with the standard because it is proposed to significantly minimise disturbance to the natural environment caused by earthworks, civil works and tree removal that would otherwise be required to comply with the standard. The site is suitable for the development and the variation raises minimal environmental impacts. |
||||
|
Estimated cost |
$794,575.00 |
||||
|
Delegation to determine |
Council Reason: application requires Council determination for a variation to a development standard over 10%. |
||||
Summary:
The DA proposes Dual Occupancy (Detached) Comprising an Existing Dwelling, a New Dwelling, a Carport / Workshop and Removal of 6 Trees.
The application proposes a variation to a development standard in accordance with clause 4.6 of Byron LEP 2014. The development standard to be varied is the requirement for each dwelling to use the same vehicular access to and from a public road prescribed by clause 4.2D(2)(b). The application proposes a new access to Tinderbox Road at the eastern most corner of the site in addition to an existing access also from Tinderbox Road but at the eastern most corner of the site. In accordance with the NSW Department of Planning, Housing and Infrastructure Guide to Varying Development Standards dated November 2023, the application needs to be determined by the elected Council
The application is supported by a written request that strict compliance with the development standard is unreasonable or unnecessary and that there are sufficient environmental grounds to vary the control. The proposal will not result in adverse outcomes on the rural amenity of the locality, and results in positive impacts on the environment by limiting vegetation removal to some minor trees. Extending the existing access would require substantial native tree removal and also large-scale earthworks. Two separate driveway entrances does not contravene any zone objectives and does not result in adverse impacts on rural landscape values. The proposal is compliant in relation to all other aspects of the Byron LEP 2014.
At its meeting on 14 November 2024, Council twice resolved in relation to two different dual occupancy development applications, each proposing a separate driveway for each dwelling, that those applications be approved, and that the redundancy of this development control be reviewed by staff and new DCP provisions be considered instead to otherwise allow a second driveway to be approved where there are reasonable and sufficient environmental planning grounds. It is understood this will be considered in a housekeeping amendment to the LEP to be reported to Council in the future.
This Report supports the proposed variation to the development standard.
The application was publicly exhibited, and no submissions have been received.
The application appropriately addresses the relevant constraints applying to the site and is recommended for approval subject to the conditions listed in Attachment 1.
NOTE TO COUNCILLORS:
In accordance with the provisions of S375A of the Local Government Act 1993, a Division is to be called whenever a motion for a planning decision is put to the meeting, for the purpose of recording voting on planning matters. Pursuant to clause 2(a) under the heading Matters to be Included in Minutes of Council Meetings of Council's adopted Code of Meeting Practice (as amended) a Division will be deemed to have been called by the mover and seconder of all motions relating to this report.
RECOMMENDATION:
That pursuant to Section 4.16 of the Environmental Planning & Assessment Act 1979, Development Application No. 10.2024.490.1 for Dual Occupancy (Detached) Comprising an Existing Dwelling, a New Dwelling, a Carport / Workshop and Removal of 6 Trees, be granted consent subject to the conditions in Attachment 1 #E2025/28396.
1 10.2024.490.1
- Recommended Conditions of Consent, E2025/28396
![]()
2 10.2024.490.1
- Plans, E2025/28459 ![]()
3 10.2024.490.1
- Clause 4.6 Written Request for Variation to Development Standard, E2024/146026 ![]()

Assessment:
INTRODUCTION
History/Background
Building Application No. 6.1977.2033.1 for a dwelling was determined on 4/3/1997.
Building Application No. 6.1982.2620.1 for additions was determined on 21/12/1982.
Development Application No. 5.1988.533.1 for additions was approved on 14/10/1988.
Building Application No. 6.1988.2596.1 for extensions to a dwelling was approved on 17/10/1988.
Development Application No. 10.2007.646.1 for alterations and additions to a double storey dwelling house was approved on 13/2/2008 and modified on 6/8/2008.
Description of the proposed development
This application seeks approval for Dual Occupancy (Detached) Comprising an Existing Dwelling, a New Dwelling, a Carport / Workshop and Removal of 6 Trees. The plans of the proposal are included in Attachment 2 of this Report.
The application proposes a new single storey dwelling contains 3 bedrooms, study, kitchen, dining, bathrooms, laundry, living areas and covered verandah. The new dwelling utilises a combination of materials that include concrete slab floor, brick veneer walls, metal sheet roof, guttering & downpipes, timber decking and sliding & louvre windows. The proposal locates the bedrooms and living areas on the northern side of the dwelling, opening onto the large covered verandah providing a high level of connectivity between the indoor and outdoor areas. The new dwelling contains a total internal floor area of 179.1m2 and 82.5m2 of verandah.
The carport and workshop shed building is detached and located on the southern side of the dwelling and accessed via the new internal driveway. The building utilises a concrete slab on ground upon earthworks cut and batter pad. The building contains total dimensions of 11m x 6m and will comprise an open carport to accommodate two vehicles and a workshop space with a small bathroom. The building presents a simple skillion roof structure utilising metal sheet wall and roof cladding. The building is of a compatible with the design of the dwelling. The building contains floor areas of 36m2 sqm and 28m2 respectively.
Access to the new dwelling is proposed via a new driveway and crossover to Tinderbox Road. Car parking is available within the proposed detached carport and workshop building.
The proposal requires the removal of six (6) trees all located within the north-eastern portion of the site and within the Council Road reserve, to allow for the construction of the new driveway access connecting to Tinderbox Road. The trees to be removed include 4 exotics being 3 tibouchinas and an Orange Murraya, and two natives being a paperbark and a red cedar.
Offset tree plantings will include 20 native rainforest trees to be planted on the subject site. A medium sized Silky Oak (Grevillea robusta) tree is located on the south-east side of the new dwelling building which is to be retained and protected during construction stage works. Conditions are recommended in this regard.
Description of the site
A site inspection was carried out on 12 March 2025.


|
Land is legally described |
LOT: 3 DP: 575719 |
|
Property address |
7 Tinderbox Road TALOFA |
|
Land is zoned: |
RU2 Rural Landscape |
|
Land area is: |
2.02 hectares |
|
Constraints and Attributes:
|
Bush Fire Prone Land |
SUMMARY OF REFERRALS
|
Referral |
Issue |
|
Environmental Health Officer |
No objections subject to conditions. |
|
Development Engineer |
No objections subject to conditions. |
|
S64 / Systems Planning Officer |
No objections, no conditions. |
|
Rous County Council |
No objections, no conditions. |
SECTION 4.14 – BUSH FIRE PRONE LAND
|
Asset Protection Zone |
- North for a distance of 32m from the dwelling; - East for a distance of 25m from the dwelling; - South for a distance of 20m from the dwelling; and - West for a distance of 25m from the dwelling. |
|
Bushfire Attack Level (BAL) |
BAL 12.5 |
Effect of 10/50 rule on significant vegetation: A condition is recommended requiring that all native vegetation that the 10/50 Vegetation Clearing Code of Practice would otherwise authorise to be removed, destroyed or pruned must be retained for conservation purposes.
SECTION 4.15C – MATTERS FOR CONSIDERATION – DISCUSSION OF ISSUES
Having regard to the matters for consideration detailed in Section 4.15(1) of the Environmental Planning & Assessment Act 1979 (EP&A Act), the following is a summary of the evaluation of the issues.
State Environmental Planning Policies (SEPP)
|
Considerations |
Satisfactory |
Unsatisfactory |
|
Biodiversity and Conservation SEPP 2021 Consideration: The site is not mapped in Council’s adopted Koala Plan of Management or mapped as being Koala Habitat. No trees within a mapped high environmental value vegetation area are proposed to be removed under this application. The building envelope for the proposed dwelling is devoid of significant vegetation. |
☒ |
☐ |
|
Resilience and Hazards SEPP 2021 Consideration: The submitted Preliminary Site Investigation in relation to potential for contamination found the land parcel suitable for residential use. |
☒ |
☐ |
|
Transport and Infrastructure SEPP 2021 Consideration: The proposal is satisfactory having regard to the provisions of the Transport and Infrastructure SEPP. |
☒ |
☐ |
|
Sustainable Buildings SEPP 2022 Consideration: A BASIX Certificate required for: · New dwellings · Alterations > $50,000.00 · Pools > 40,000 kl A BASIX certificate has been provided and a condition of consent requires the development to comply with the requirements of that certificate. |
☒ |
☐ |
4.2 Byron Local Environmental Plan 2014 (LEP 2014)
In accordance with LEP 2014 clauses 1.4 and 2.1 – 2.3:
(a) The proposed development is defined in the LEP 2014 Dictionary as a Dual occupancy (detached);
(b) The land is within the RU2 Rural Landscape according to the Land Zoning Map;
(c) The proposed development is permitted with consent; and
(d) Regard is had for the Zone Objectives as follows:
|
Zone Objective |
Consideration |
|
To encourage sustainable primary industry production by maintaining and enhancing the natural resource base |
The application proposes minimal disturbance to the natural resource base. |
|
To encourage diversity in primary industry enterprises and systems appropriate for the area |
The proposal does not have a significant impact on the agricultural viability of the land. |
|
To minimise the fragmentation and alienation of resource lands |
The proposal does not fragment or alienate resource lands. |
|
To minimise conflict between land uses within this zone and land uses within adjoining zones |
The proposal does not present any significant land use conflict. |
|
To encourage consolidation of lots for the purposes of primary industry production |
The proposal does not include any lot consolidation. |
|
To enable the provision of tourist accommodation, facilities and other small-scale rural tourism uses associated with primary production and environmental conservation consistent with the rural character of the locality |
The application proposes residential use only. |
|
To protect significant scenic landscapes and to minimise impacts on the scenic quality of the locality |
The proposal will not have a significant impact on the scenic quality of the locality. |
The proposed development complies with all clauses of LEP 2014 (in some cases subject to conditions and/or to the satisfaction of other assessing officers) except as outlined below.
4.2D Erection of dual occupancies (detached) and secondary dwellings in Zones RU1 and RU2
(1) The objectives of this clause are as follows—
(a) to provide alternative accommodation for rural families and workers,
(b) to ensure that development is of a scale and nature that is compatible with the primary production potential, rural character and environmental capabilities of the land,
(c) to set out consent considerations for development of dual occupancies (detached) and secondary dwellings to address matters such as access, siting, land suitability and potential impacts.
(2) Development consent must not be granted to development for the purpose of a dual occupancy (detached) or secondary dwelling on land in Zone RU1 Primary Production or Zone RU2 Rural Landscape unless the consent authority is satisfied that—
(a) the development will not impair the use of the land, or neighbouring land, for agriculture or rural industries, and
(b) each dwelling will use the same vehicular access to and from a public road, and
(c) (Repealed)
(d) the land is physically suitable for the development, and
(e) the land is capable of accommodating the on-site disposal and management of sewage for the development, and
(f) the development will not have an adverse impact on the scenic amenity or character of the rural environment.
The application seeks approval to utilise a second access which to some extent is already existing (refer to photos above). Two accesses to separate dwellings in a dual occupancy development at this location does not comply with Clause 4.2D(2)(b). This is further assessed as a variation to a development standard below.
Clause 4.3 Height of Buildings
The plans demonstrate that the proposed single storey dwelling is well below the maximum 9m building height development standard.
Clause 6.5 Drinking water catchments
The proposal does not raise any concerns with regards to this clause. The development is unlikely to have an adverse impact on the quality and quantity of water entering the drinking water storage basin. The dwelling will be connected to an appropriately designed onsite sewage management system (OSMS), and conditions are recommended in this regard. Water quality during construction will be maintained by installation of erosion and sediment control measures.
Clause 6.6 Essential services
The site has adequate access to all essential services, including town water supply, electricity, onsite sewage management, stormwater drainage and suitable vehicular access.
Clause 4.6 Exceptions to Development Standards
The application seeks a variation to clause 4.2D(2)(b) by proposing a second vehicular access to the public road network. The existing dwelling will retain its existing access to Tinderbox Road while the proposed new dwelling is proposed to have its own separate vehicular access to Tinderbox Road.
The application is supported by a written request (Attachment 3 to this Report) that strict compliance with the development standard is unreasonable or unnecessary and that there are sufficient environmental grounds to vary the control as follows:
· Utilisation of both driveways will not result in adverse outcomes on the rural amenity of the locality, and results in positive impacts on the environment by limiting vegetation removal to some minor trees. Alternatively accessing from a single driveway would require substantial native tree removal and also large-scale earthworks.
· The use of two driveways to access the property is regarded as the best outcome to enable the dual occupancy to be undertaken on the subject site.
· Compliance with sub-clause Clause 4.2D(2)(a) is unreasonable considering that ongoing operation of two driveways will not result in adverse impacts on traffic or rural amenity, with the driveways only each being used for single dwelling buildings.
· The proposed second driveway entrance results in a positive impact on the environment compared to connecting to the existing driveway entrance.
· Utilising the same driveway entrance for both dwellings is unreasonable in terms of achieving other zone objectives and development controls from the Byron DCP 2014, in particular those controls relating to biodiversity and earthworks.
· The property is suitably zoned as RU2 – Rural Landscape where the proposed dual occupancy dwelling is located and the use of the two separate driveway entrances does not contravene any zone objectives. The use of two driveway entrances to the site does not result in adverse impacts on rural landscape values.
· The proposal is highly compliant in regards to all other aspects of the Byron LEP 2014.
· It is in the public interest to approve the variation request considering the specific circumstances of the case, considering that the proposal is highly suitable for the property that will result in positive environmental planning outcomes, and that the use of the two separate existing driveway entrances provide positive outcomes for the ongoing use of the proposed dual occupancy and does not generate unwanted, adverse environmental impacts.
Strict compliance with the development standard is unreasonable and unnecessary in the circumstances of the case, and there are sufficient environmental planning grounds to vary the development standard, for the following reasons:
· Requiring compliance with the development standard would require the extension of the driveway to the existing dwelling for a distance of approximately 200m to provide vehicular access to the proposed dwelling. Such an extension would traverse a significantly sloping area of the site which would require tree removal and major earthworks and civil works. This area also drains to a stream and would potentially present a sediment erosion risk.
· There is an existing “farm track” and gate at the location of the proposed access to Friday Hut Road which has been used historically to access the western portion of the site.
· Access to Tinderbox Road can reasonably achieve compliant sight distances and provide safe access without the need to increase the number of vehicle movements to and from the driveway to the existing dwelling.
· The second access will also provide a more direct path to the new dwelling for a fire truck to more efficiently protect the asset in the event of a bush fire emergency.
· The existing access can reasonably be upgraded to comply with Council’s construction standards and Planning for Bush Fire Protection 2019 requirement subject to recommended conditions.
Further the proposal is in the public interest having regards to the objectives of the development standard being to ensure that development is of a scale and nature that is compatible with the primary production potential, rural character and environmental capabilities of the land, and to set out consent considerations for development of dual occupancies (detached) and secondary dwellings to address matters such as access, siting, land suitability and potential impacts.
By allowing a separate driveway access to the new dwelling, the development will ensure that it is of a scale and nature that is compatible with the rural character and environmental capabilities of the land and that potential impacts are minimised.
The concurrence of the Planning Secretary is not required.
At its meeting on 14 November 2024, Council twice resolved in relation to two different dual occupancy development applications, each proposing a separate driveway for each dwelling, as follows:
The redundancy of Byron Local Environmental Plan 2014 controls that require each dwelling of a dual occupancy on a rural lot to use the same vehicular access to and from a public road be reviewed by staff. With New DCP provisions to be considered instead to otherwise allow a second driveway to be approved where there are reasonable and sufficient environmental planning grounds. Both LEP and DCP amendments to be reported back to Council as future LEP and DCP House Keeping matters.
It is recommended that the development standard can be varied in this instance.
a) The development is satisfactory having regard to the requirements outlined in clause 4.6;
b) The development is satisfactory having regard to applicable Department of Planning, Infrastructure and Environment Circulars;
c) The development is satisfactory having regard to relevant caselaw;
d) The development application demonstrates that compliance is with the development standard is unreasonable and unnecessary;
e) The development application demonstrates that there are sufficient environmental planning grounds to justify contravening the standard;
f) The development application demonstrates that that the development in the public interest;
g) The development application demonstrates that the development is consistent with the objectives of the standard and the zone;
h) The development application demonstrates how the development produces a better planning outcome than one that strictly complied with the development standard; and
i) The development application demonstrates what it is about the grounds of the request that are particular to the proposed development on this site, and that there has to be something particular to the development on this site to justify the variation.
4.3 Any proposed Instrument that has been the subject of public consultation and has been notified to the consent authority
There are no proposed instruments of significant applicability to the proposal.
4.4 Byron Shire Development Control Plan 2014 (DCP 2014)
The proposal requires the removal of 6 trees all located within the north-eastern portion of the site and within the Council road reserve, to allow for the construction of the new driveway access connecting to Tinderbox Road. Offset tree plantings will include 20 native rainforest trees to be planted on the subject site. A medium sized Silky Oak (Grevillea robusta) tree is located on the south-east side of the new dwelling building which is to be retained and protected during construction stage works. Conditions are recommended in this regard.
B4 Traffic Planning, Vehicle Parking, Circulation and Access
The proposed dwelling includes 2 car parking spaces in close proximity to the proposed dwelling, which complies with the applicable requirement.
C3 Visually Prominent Sites, Visually Prominent Development and View Sharing
The site meets the definition of a visually prominent site being RU2 Rural Landscape with a height of 60m AHD or greater. Conditions are recommended that roof colours must be non-reflective earth tone colours and that the use of white and near white roof colours is not permissible.
B14 Excavation and Fill
The development complies with the relevant Objectives and Prescriptive Measures of this Chapter with the exception of B14.2 Earthworks and Fill in All Zones. The proposed variation is justified below:
|
What Section and prescriptive measure does the development not comply with? |
Does the proposed development comply with the Objectives of this Section? Address. |
Does the proposed development comply with the Performance Criteria of this Section? Address. |
|
B14.2 Excavation and Fill in All Zones The proposed depth of excavation is up to approximately 2.3m deep, which exceeds the maximum 1m requirement, in the location of the proposed workshop / carport:
|
The proposed development complies with the Objectives of the Section because: 1. The proposal maintains overall compatibility with the Shire’s natural features and historical built character. The extent of earthworks are not out of character in the context. 2. The extent, character, bulk and scale of the proposed earthworks will not detract from the existing and desired future character of the immediate locality and surrounding area. 3. The proposed earthworks will not detract from the existing and desired future character of the immediate locality and surrounding area. |
The proposed development complies with the Performance Criteria of this Section because: 1. The proposed earthworks will be compatible with the low rise, rural density form, scale and desired future character of the locality and immediate surrounds. Earthworks are limited to ensure that: a) Adverse visual impacts, bulk and scale of both the proposed earthworks and the resultant overall development are minimised; b) Significant overshadowing of adjoining land is avoided; c) The scale and character of the resultant landform and buildings remains compatible with the surrounds and desired future character of the locality; d) Drainage characteristics and systems will not be significantly affected; e) The need for engineering and support works is minimised; f) Risk of geotechnical instability and/ or landslip is minimised. 2. The proposed earthworks do not relate to improving thermal sustainability or insulation. 3. The proposal is not in a commercial area. 4. Filling is not proposed to mitigate flooding and stormwater issues. 5. The site is not mapped as having stability problems. |
The proposed development is demonstrated to meet the relevant Objectives of DCP 2014.
4.5 Environmental Planning and Assessment Regulation 2021 considerations
|
Environmental Planning and Assessment Regulations 2021 |
Applicable to the proposal: |
Considered the control as it relates to the proposal: |
If this control is applicable, does the proposal comply? |
|
Section 61 - Additional matters that consent authority must consider |
☐ Yes ☒ No |
☐ Yes ☐ No ☒ NA |
☐ Yes ☐ No ☒ NA |
|
Section 62 - Consideration of fire safety |
☐ Yes ☒ No |
☐ Yes ☐ No ☒ NA |
☐ Yes ☐ No ☒ NA |
|
Section 64 - Consent authority may require upgrade of buildings |
☐ Yes ☒ No |
☐ Yes ☐ No ☒ NA |
☐ Yes ☐ No ☒ NA |
|
Section 63 - Considerations for erection of temporary structures |
☐ Yes ☒ No |
☐ Yes ☐ No ☒ NA |
☐ Yes ☐ No ☒ NA |
4.6 The likely impacts of that development, including environmental impacts on both the natural and built environments, and social and economic impacts in the locality
4.6.1
|
Impact on: |
Likely significant impact/s? |
|
Natural environment |
The proposal will not have a significantly adverse impact on the natural environment of the locality. |
|
Built environment |
The proposal will not have a significantly adverse impact on the built environment of the locality. |
|
Social Environment |
The proposal will not have a significant social impact on the locality. |
|
Economic impact |
The proposal will not have a significant economic impact on the locality. |
|
Construction Impacts |
The development will generate minor impacts during its construction. Conditions of consent recommended to control hours of work, builders waste, construction noise, installation of sedimentation and erosion control measures and the like to ameliorate such impacts. |
4.6.2 Marine Estate Management Act 2014
The development is unlikely to have an effect on the plants or animals within the Cape Byron Marine Park or their habitat.
4.7 The suitability of the site for the development
The site is relatively unconstrained, can be serviced and is suitable for the proposed development.
4.8 Submissions made in accordance with this Act or the regulations
The development application was publicly exhibited.
There were no submissions made on the development application.
4.9 Public interest
The proposed development is unlikely to prejudice or compromise the public interest or create an undesirable precedent.
DEVELOPER CONTRIBUTIONS
5.1 Water Levies
Water levies are not required.
5.2 Developer Contributions
Section 7.11 Contributions will be payable.
DISCLOSURE OF POLITICAL DONATIONS AND GIFTS
|
Disclosure details |
Response |
|
Has a Disclosure Statement been received in relation to this application? If Yes, Provide Disclosure Statement register reference: 91. |
Yes ☐ No ☒ |
|
Have staff received a ‘gift’ from anyone involved in this application that needs to be disclosed. |
Yes ☐ No ☒ |
CONCLUSION
The DA proposes Dual Occupancy (Detached) Comprising an Existing Dwelling, a New Dwelling, a Carport / Workshop and Removal of 6 Trees. The proposal raises no significant issues in terms of environmental impacts which cannot be managed, and the site is considered suitable for the proposed development. The application is recommended for approval subject to conditions of consent.
Staff Reports - Infrastructure Services 13.8
Staff Reports - Infrastructure Services
Report No. 13.8 General Managers Delegation to Award Tenders
Directorate: Infrastructure Services
Report Author: James Flockton, Infrastructure Planning Coordinator
Heather Sills, Manager Corporate Services
File No: I2025/372
Summary:
The General Manager has delegations which can be used to award certain tenders in accordance with the Local Government Act.
This report proposes to update this delegation to support efficient delivery of Infrastructure Recovery program projects, reducing any potential delays in fixing urgent repairs caused by disasters.
RECOMMENDATION:
That Council, pursuant to s377(1) of the Local Government Act 1993 updates the delegation to the General Manager with respect to accepting or rejecting tenders subject to the limitation in s377(1)(i) of the Local Government Act 1993 as follows:
1. Acceptance or decline of tenders other than to provide services currently provided by members of staff of the council (s377(1)i of LGA). Acceptance or decline of tenders is limited to:
a) Capital works specifically itemised in a budget approved by Council (as long as the tendered amount falls within the approved budget); or
b) Disaster Recovery works (where the tendered amount falls within the approved value of the works defined in the executed Essential Public Asset Restoration funding agreement); or
c) Renewal of existing contracts; or
d) Tenders less than $500,000 (ex GST) in value; and
e) Compliance with Local Government (General) Regulation
1 Delegation
of functions to the General Manager 10 April 2025, E2025/30996 ![]()
Report
Council’s Infrastructure Recovery team has commenced developing, advertising and awarding tender packages for recovery program following the 2022 floods.
All Essential Public Asset Restoration programs have been approved by Transport NSW for the 2022 floods and further programs are likely to be sought due to Cyclone Alfred 2025.
Infrastructure Recovery team have approximately 50 tenders to award as per the procurement plans for the program.
The General Manager’s Delegation with respect to tenders is currently:
Acceptance or decline of tenders other than
to provide services currently provided by members of staff of the council
(s377(1)i of LGA)
Acceptance or decline of
tenders is limited to:
a) Capital works specifically itemised in a budget approved by Council (as long
as the tendered amount falls within the approved budget); or
b) Renewal of existing contracts; or
c) Tenders less than $500,000 (ex GST) in value; and
d) Compliance with Local Government (General) Regulation
At present, Council must resolve to accept or reject tenders for contracts outside these requirements. To avoid delays in the procurement process and reduce the impact on the community, it is recommended that Byron Shire Council amend the General Manager’s delegations as recommended.
Key issues
The Infrastructure Recovery program is such that, the majority of contracts will be delivered across a number of financial years and funding will fluctuate depending on the progression of works. As the delegation noted in 10(a) states: 'Capital works specifically itemised in a budget approved by Council (as long as the tendered amount falls within the approved budget), this may result in the majority of tenders needing to be reported to Council.
Given the size and duration of the Infrastructure Recovery program it is essential we develop processes and systems that streamline all delivery aspects. Updating the General Manager’s delegation with a distinct Disaster Recovery provision has been highlighted as a key improvement to streamline processes and systems.
Next steps
If Council resolves to accept the changes proposed in this report, the Governance Officer will update the General Manager’s delegations, and this and any supported tendering changes will be communicated to staff.
If supported by Council, the General Manager will exercise the new delegations to support the efficient delivery of the Infrastructure Recovery program. It is noted that the General Manager does not have to exercise these delegations and may report tenders to Council from time to time should the need arise.
Strategic Considerations
Community Strategic Plan and Operational Plan
|
CSP Objective |
CSP Strategy |
DP Action |
Code |
OP Activity |
|
1: Effective Leadership |
1.3: Ethical and efficient management of resources |
1.3.4: Procurement - Ensure Council's procurement framework is robust, efficient, and effective |
1.3.4.1 |
Continue to build internal capacity in effective procurement and contract management |
|
1: Effective Leadership |
1.3: Ethical and efficient management of resources |
1.3.4: Procurement - Ensure Council's procurement framework is robust, efficient, and effective |
1.3.4.2 |
Continue development and commence the implementation of a robust Contract Management Framework to support effective practices and mitigate identified contract management risks |
|
4: Ethical Growth |
4.5: Support a resilient community that can adapt and respond to change |
4.5.2: Recovery - Support disaster recovery following the 2022 flood events |
4.5.2.4 |
Coordinate natural disaster recovery works programs in consideration of operational works, capital works and other grant requirements |
|
4: Ethical Growth |
4.5: Support a resilient community that can adapt and respond to change |
4.5.2: Recovery - Support disaster recovery following the 2022 flood events |
4.5.2.5 |
Develop, implement and maintain a program for natural disaster impacted infrastructure recovery works |
Recent Resolutions
· 22-311 Review of Council Delegations
· 22-439 Temp Tendering Delegations
Legal/Statutory/Policy Considerations
Section 377(1) of the Local Government Act 1993 allows a council, by resolution, to delegate to the General Manager or any other person functions of the Council under the Local Government Act 1993, with the only limitation for tendering under subsection 377(1)(i) in respect of accepting tenders for services currently provided by members of staff of the council (Attachment 2).
Financial Considerations
Nil.
Consultation and Engagement
This proposal has been discussed with key staff within Council only.
Reports of Committees - Infrastructure Services 14.1
Reports of Committees - Infrastructure Services
Report No. 14.1 Report of the Local Traffic Committee Meeting held on 18 March 2025
Directorate: Infrastructure Services
File No: I2025/363
Summary:
The attachment to this report provides the minutes of the Local Traffic Committee Meeting held on 18 March 2025 for determination by Council.
Council’s action on the LTC advice will be:
a) If Council is in agreement with the LTC unanimous support then the proposal may be approved. In these cases there is no conflict between Council and the advice of the LTC, consequently there is no need for Council to inform TfNSW or the NSW Police representatives of the decision.
b) If Council is in agreement with the LTC unanimous support, but no longer wants to proceed, the proposal may still be rejected.
c) If Council is in agreement with the LTC unanimous decline then the proposal may be rejected. Again there is no conflict between Council and the advice of the LTC. Consequently there is no need for Council to inform TfNSW or the NSW Police representatives of the decision.
d) If Council decides to proceed with a proposal where the advice of the LTC is not unanimous support, then the Council must first advise the TfNSW and the NSW Police representatives in writing of their intention to approve the proposal. TfNSW or the NSW Police may then lodge an appeal to the Regional Traffic Committee (RTC).
e) If Council decides to proceed with a proposal where the advice of the LTC is a unanimous decline, then the Council must first advise the TfNSW and NSW Police representatives in writing of their intention to approve the proposal. TfNSW or the NSW Police may then lodge an appeal to the RTC.
Due to the fact that the TfNSW and the NSW Police have the power to appeal certain decisions of the Council, the LTC cannot provide its advice to Council until both TfNSW and the NSW Police have provided their vote on the issue.
RECOMMENDATION:
1. That Council notes the minutes of the Local Traffic Committee Meeting held on 18 March 2025.
1 Minutes
18/03/2025 Local Traffic Committee, I2025/289
![]()
Report
The attachment to this report provides the minutes of the Local Traffic Committee Meeting of 18 March 2025 for determination by Council. The agenda for this meeting can be located on Council’s website at:
byron.infocouncil.biz/Open/2025/03/LTC_18032025_AGN_2019_AT.PDF This report contains the recommendations of the Local Traffic Committee (LTC) meeting held on 18 March 2025.
Financial Implications
As per the Reports listed within the Local Traffic Committee Meeting of 18 March 2025.
Statutory and Policy Compliance Implications
As per the Reports listed within the Local Traffic Committee Meeting of 18 March 2025.